Maison 77m² à surgères

— Surgeres 17700 —
262 000 €
77 m² / 285 m²
3 pièces
jardin

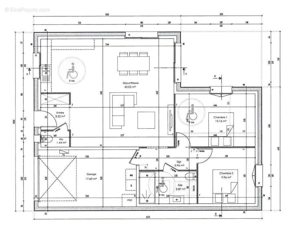
Située à Surgères, Maison de plain pied en cours de construction, elle offre une entrée, une cuisine ouverte sur séjour-salon, 2 chambres, SDE, WC, terrasse et garage.
Son jardin sera entièrement clôturé,
Frais de notaire réduits et la date de livraison prévue pour octobre/novembre 2026.
Contactez nous pour une visite.

Référence: 2526
DPE
A
B
C
D
E
F
G
GES
A
B
C
D
E
F
G
Maison à SURGERES
Maison à SURGERES
Géorisques

Les informations sur les risques auxquels ce bien est exposé sont disponibles sur le site Géorisques : www.georisques.gouv.fr

Ce site est protégé par hCaptcha Politique de confidentialité et Conditions d’utilisation s’appliquent.

En poursuivant votre navigation sans modifier vos paramètres, vous acceptez l'utilisation de cookies susceptibles de réaliser des statistiques de visite. Cliquez ici pour plus d'informations