Bénéficiez des services de nos partenaires locaux soigneusement sélectionnés
pour vous accompagner dans votre parcours d'achat immobilier

Vente fonds de commerce - nice garibaldi/port

— Nice 06300 —
54 900 €
63 m²

Nos partenaires locaux
VENTE DROIT AU BAIL - GARIBALDI / LE PORT
Idéalement située à deux pas de la Place Garibaldi, du Port et de la Place du Pin, cette boutique bénéficie d’un emplacement recherché au cœur d’un quartier dynamique à forte attractivité commerciale.

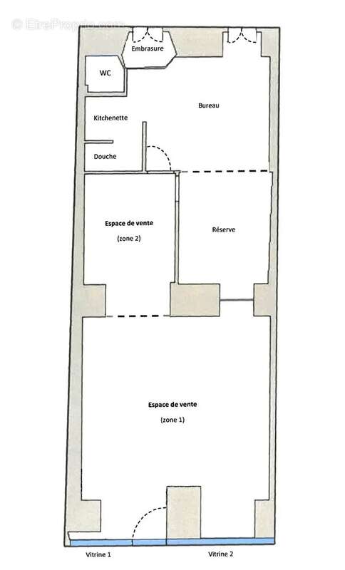
Ce local commercial de 63,55 m² (loi Carrez) offrant un linéaire vitrine de 4,85 m, dans une rue passante récemment réaménagée dispose d'un espace de vente de presque 40 m², d'une réserve, d'un espace bureau coin cuisine, de toilettes et d'une douche.
Local à rafraîchir disposant d'un beau potentiel d'aménagement.

Destination actuelle "à usage exclusif de vente de vêtements, accessoires et articles de sport".

Loyer très attractif : 610 € / mois charges comprises.

Une opportunité rare pour s’implanter dans un quartier très touristique, proche du tramway.
Voir plus

Référence: 438
Barème des honoraires
Commerce à NICE
Commerce à NICE
Géorisques

Les informations sur les risques auxquels ce bien est exposé sont disponibles sur le site Géorisques : www.georisques.gouv.fr

Ce site est protégé par hCaptcha Politique de confidentialité et Conditions d’utilisation s’appliquent.

En poursuivant votre navigation sans modifier vos paramètres, vous acceptez l'utilisation de cookies susceptibles de réaliser des statistiques de visite. Cliquez ici pour plus d'informations