Bénéficiez des services de nos partenaires locaux soigneusement sélectionnés
pour vous accompagner dans votre parcours d'achat immobilier

Appartement à rénover - Emplacement d'exception

— Le Pouliguen 44510 —
388 500 €
76 m²
4 pièces
parkingbalcon/terrasse

Nos partenaires locaux
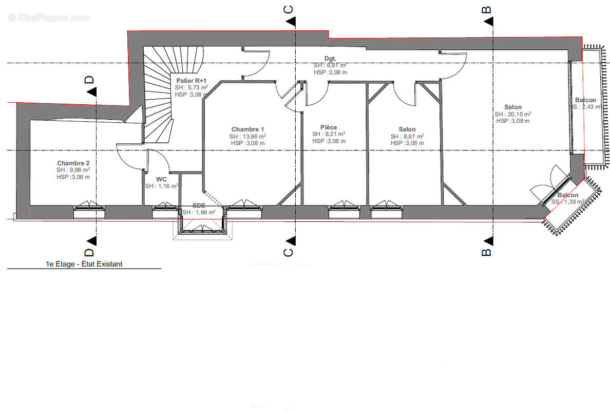
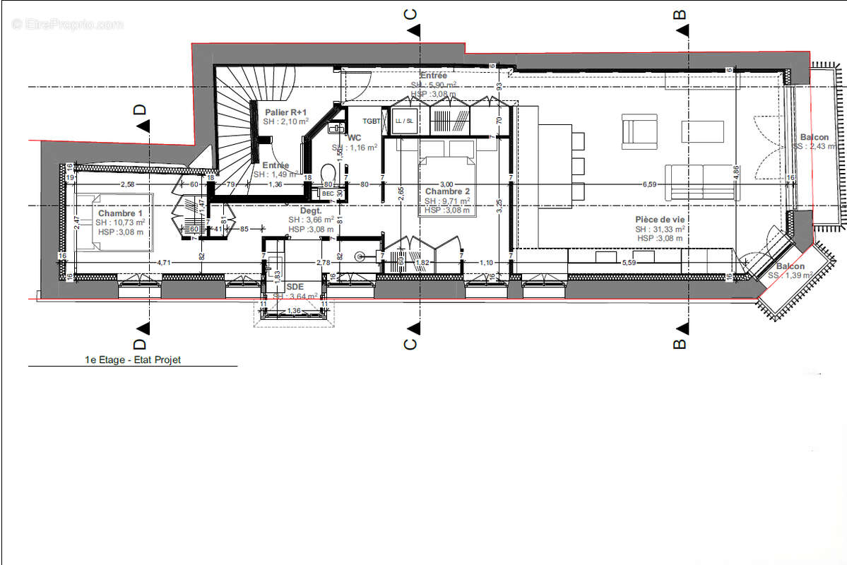
Vue exceptionnelle sur le port du Pouliguen Situé au 1er étage d'une petite copropriété de caractère comprenant seulement deux logements, cet appartement de type 3 à rénover saura vous séduire par son potentiel et son emplacement privilégié. Un garage situé à quelques pas vient compléter le bien . Il représente une opportunité rare de repenser entièrement les volumes et d'aménager un espace de vie unique, à votre image. Un projet de rénovation réalisé par un architecte ainsi qu'un chiffrage détaillé des travaux sont disponibles à l'agence. Une visite virtuelle 3D est également à votre disposition pour vous projeter pleinement. Offrez-vous un bien singulier dans un cadre exceptionnel. Les informations sur les risques auxquels ce bien est exposé sont disponibles sur le site Géorisques : www.georisques.gouv.fr (5.00 % honoraires TTC à la charge de l'acquéreur.) Copropriété de 9 lots - dont 2 lots habitation. (). Charges annuelles : 60 euros.
Voir plus

Référence: lp0988
Bien en copropriété. Nombre de lots : 9. Charges de copropriété : 60 €. Procédure en cours.
Honoraires d'agence de 5% à la charge de l'acquéreur
Barème des honoraires
DPE
A
B
C
D
E
F
G
GES
A
B
C
D
E
F
G
Appartement à LE POULIGUEN
Appartement à LE POULIGUEN
Appartement à LE POULIGUEN
Géorisques

Les informations sur les risques auxquels ce bien est exposé sont disponibles sur le site Géorisques : www.georisques.gouv.fr

Ce site est protégé par hCaptcha Politique de confidentialité et Conditions d’utilisation s’appliquent.