Bénéficiez des services de nos partenaires locaux soigneusement sélectionnés
pour vous accompagner dans votre parcours d'achat immobilier

Appartement à rénover - Emplacement d'exception

— Le Pouliguen 44510 —
315 000 €
77 m²
3 pièces
balcon/terrasse

Nos partenaires locaux
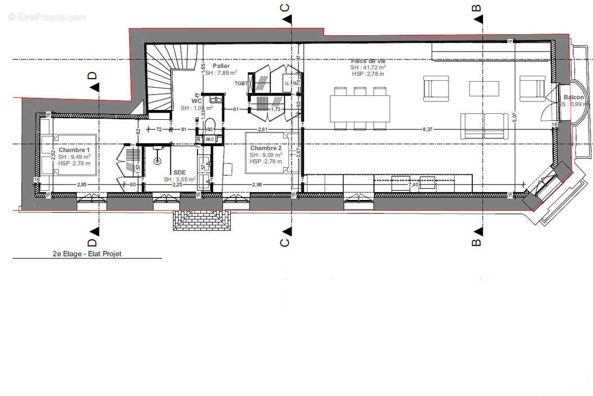
Port du Pouliguen. Au 2 -ème étage d'une petite copropriété composée de seulement deux lots, découvrez cet appartement de type 3 entièrement à rénover. Son emplacement privilégié et son fort potentiel en font un bien rare sur le secteur. Un place de stationnement extérieure sécurisée , donne un atout supplémentaire à ce bien. Ce logement offre une belle opportunité de repenser les espaces et de créer un intérieur sur mesure, en accord avec vos envies. Un projet de rénovation conçu par un architecte, accompagné d'une estimation précise des travaux, est disponible à l'agence. Une visite virtuelle 3D vous permettra également de vous projeter facilement. Un bien atypique dans un environnement d'exception à ne pas manquer. Les informations sur les risques auxquels ce bien est exposé sont disponibles sur le site Géorisques : www.georisques.gouv.fr (5.00 % honoraires TTC à la charge de l'acquéreur.) Copropriété de 9 lots (). Charges annuelles : 60 euros.
Voir plus

Référence: lp0989
Bien en copropriété. Nombre de lots : 9. Charges de copropriété : 60 €. Procédure en cours.
Honoraires d'agence de 5% à la charge de l'acquéreur
Barème des honoraires
DPE
A
B
C
D
E
F
G
GES
A
B
C
D
E
F
G
Appartement à LE POULIGUEN
Appartement à LE POULIGUEN
Appartement à LE POULIGUEN
Géorisques

Les informations sur les risques auxquels ce bien est exposé sont disponibles sur le site Géorisques : www.georisques.gouv.fr

Ce site est protégé par hCaptcha Politique de confidentialité et Conditions d’utilisation s’appliquent.