Appartement Type 2 refait à neuf au 1er étage sur rue

— Rochefort 17300 —
149 810 €
43 m²
2 pièces

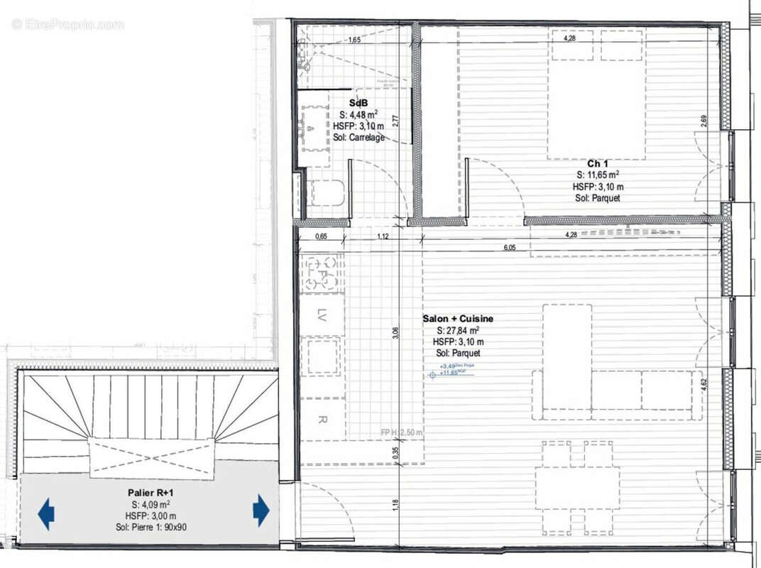
Au coeur de Rochefort, découvrez ce bel appartement entièrement rénové, situé dans un immeuble lui aussi en cours de réhabilitation complète ! Au 1er étage, côté rue, ce Type 2 d'environ 43 m² allie confort moderne et emplacement central recherché. Entièrement refait à neuf avec des prestations soignées, il offrira un cadre de vie clé en main, idéal pour habiter ou investir. L'agencement a été pensé pour optimiser chaque mètre carré : une agréable pièce de vie lumineuse, une chambre confortable et une salle d'eau contemporaine composent ce logement fonctionnel et facile à vivre. Les + : Appartement entièrement rénové Environ 43 m² parfaitement optimisés 1er étage côté rue Immeuble en réhabilitation complète Livraison prévue mi-2027 Un bien rare sur le secteur, alliant emplacement, confort et modernité. A découvrir sans tarder ! Copropriété de 6 lots - dont 5 lots habitation. (). Charges annuelles : 500 euros.
Voir plus

Référence: 4363
Bien en copropriété. Nombre de lots : 6. Charges de copropriété : 500 €. Procédure en cours.
Honoraires à la charge du vendeur.
Barème des honoraires
Appartement à ROCHEFORT
Appartement à ROCHEFORT
Appartement à ROCHEFORT
Appartement à ROCHEFORT
Appartement à ROCHEFORT
Géorisques

Les informations sur les risques auxquels ce bien est exposé sont disponibles sur le site Géorisques : www.georisques.gouv.fr

Ce site est protégé par hCaptcha Politique de confidentialité et Conditions d’utilisation s’appliquent.

En poursuivant votre navigation sans modifier vos paramètres, vous acceptez l'utilisation de cookies susceptibles de réaliser des statistiques de visite. Cliquez ici pour plus d'informations