Appartement en frais réduits

— Cucq 62780 —
230 000 €
41 m²
2 pièces
balcon/terrasse

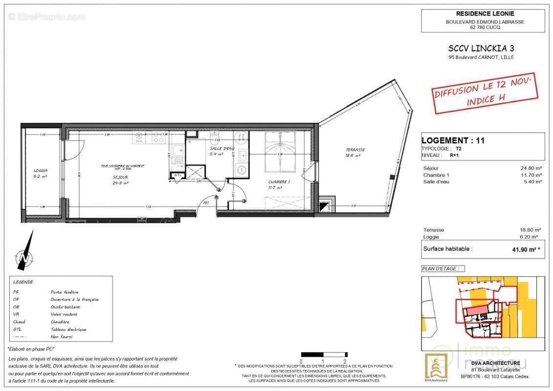
Villa Léonie – Lot 11 T2 traversant 41,90 m² – Bord de mer_Cucq À moins de 2 km des plages, la résidence Villa Léonie propose un cadre de vie privilégié alliant confort, luminosité et vie extérieure. Le Lot 11 est un T2 traversant de 41,90 m² particulièrement bien orienté, avec deux espaces extérieurs distincts : une terrasse de 18,80 m² et une loggia de plus de 6 m². Le logement comprend une chambre de 11,70 m² et une salle d'eau de 5,40 m². Option de réunion de lots Ce bien offre une flexibilité rare : il peut être réuni avec le Lot 12 (T2 de 38,10 m²) pour constituer un appartement de plus de 80 m² habitables, à double exposition et avec plusieurs espaces extérieurs. Détail du Lot 12 : séjour de 22,80 m², chambre de 10,40 m², salle d'eau de 4,90 m², loggia de 5,70 m². Des modifications intérieures restent envisageables selon l'avancement des travaux et les contraintes techniques. Plans et notice descriptive fournie sur demande. Pour visiter et vous accompagner dans votre projet, contactez Christelle HERLEM [Coordonnées masquées] Honoraires à la charge du vendeur Prix de vente 230 000 € Selon l'article L.561.5 du Code Monétaire et Financier, pour l'organisation de la visite, la présentation d'une pièce d'identité vous sera demandée. Les informations sur les risques auxquels ce bien est exposé sont disponibles sur le site Géorisques : www.georisques.gouv.fr Cette présente annonce a été rédigée sous la responsabilité éditoriale de Christelle HERLEM agissant sous le statut d'agent commercial immatriculé au Ville du greffe : DOUAI sous le numéro RSAC N° 921 757 076 auprès de la SAS IMMO RESEAU au capital de 10 000€ - Réseau national immobilier sur internet, 44 Allée des Cinq Continents - 44120 VERTOU - RNE NANTES 519 718 886. Carte professionnelle T et G n° CPI 30[Coordonnées masquées]24 971 CCI de Nantes-Saint-Nazaire (44) ; Garantie par GALIAN – 89 rue de la Boétie - 75008 Paris N°171379G pour 120 000€ pour T. Assurance responsabilité civile professionnelle par GALIAN n° de police 120 137 405 (réf. ) - Le professionnel garantit et sécurise votre projet immobilier Prix de vente 230 000 € Honoraires à la charge du vendeur Prix de vente 230 000 € Honoraires à la charge du vendeur
Voir plus

Référence: 3011443814
Honoraires à la charge du vendeur.
Appartement à CUCQ
Appartement à CUCQ
Appartement à CUCQ
Appartement à CUCQ
Appartement à CUCQ
Géorisques

Les informations sur les risques auxquels ce bien est exposé sont disponibles sur le site Géorisques : www.georisques.gouv.fr

Ce site est protégé par hCaptcha Politique de confidentialité et Conditions d’utilisation s’appliquent.

En poursuivant votre navigation sans modifier vos paramètres, vous acceptez l'utilisation de cookies susceptibles de réaliser des statistiques de visite. Cliquez ici pour plus d'informations