Bénéficiez des services de nos partenaires locaux soigneusement sélectionnés
pour vous accompagner dans votre parcours d'achat immobilier

Terrain viabilisé avec Permis de Construire sur le haut de S

— Solaize 69360 —
242 000 €
745 m²

Nos partenaires locaux
Votre projet de construction peut commencer demain !
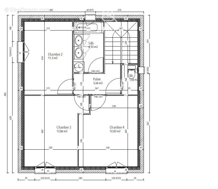
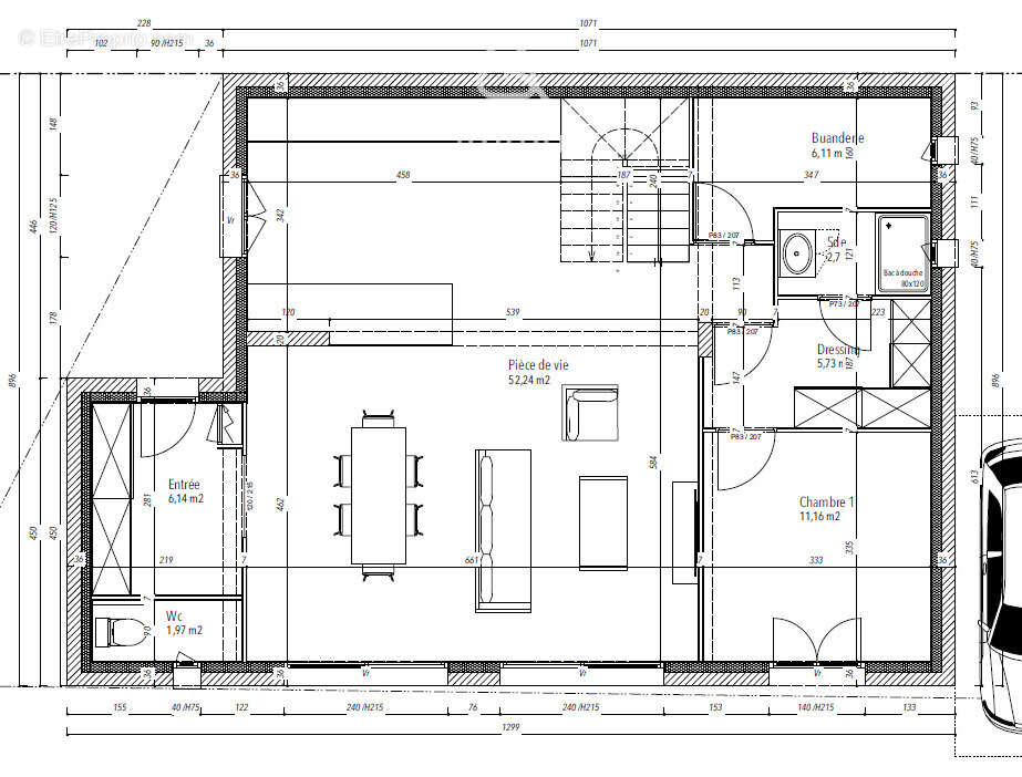
Dans un secteur calme hors lotissement, ce TERRAIN PLAT VIABILISE de 745 m2 sur le haut de Solaize vous est proposé avec le Permis de Construire pour une BELLE MAISON FAMILIALE de 133 m2 comprenant : au Rdc 1 pièce à vivre avec cuisine ouverte de 52 m2, 1 suite parentale avec chambre, dressing et salle d'eau, une buanderie et 1 wc. A l'étage, 3 belles chambres, 1 salle d'eau et 1 wc.
Chemin d'accès à l'arrière de la future construction.
Libre constructeur, le PERMIS DE CONSTRUIRE ACCEPTE ET PURGE de tout recours et peut être modifié, viabilsation et étude de sol effectuées.
Arrêt de bus en face, proche des accès A7 en étant dans un secteur préservé calme et verdoyant.
Les informations sur les risques auxquels ce bien est exposé sont disponibles sur le site Géorisques : www.georisques.gouv.fr - Annonce rédigée et publiée par un Agent Mandataire -
Voir plus

Référence: 45_NB_-_1285
GES
A
B
C
D
E
F
G
Terrain à SOLAIZE
Terrain à SOLAIZE
Terrain à SOLAIZE
Terrain à SOLAIZE
Géorisques

Les informations sur les risques auxquels ce bien est exposé sont disponibles sur le site Géorisques : www.georisques.gouv.fr

Ce site est protégé par hCaptcha Politique de confidentialité et Conditions d’utilisation s’appliquent.

En poursuivant votre navigation sans modifier vos paramètres, vous acceptez l'utilisation de cookies susceptibles de réaliser des statistiques de visite. Cliquez ici pour plus d'informations