Bénéficiez des services de nos partenaires locaux soigneusement sélectionnés
pour vous accompagner dans votre parcours d'achat immobilier

Maison en pierre de 150 m2 avec grange- atelier-jardin

— La Souterraine 23300 —
109 500 €
150 m² / 1 797 m²
5 pièces
parkingjardin

Nos partenaires locaux
Optimhome
Raphael Poursain Immobilier
En exclusivité

Ancien corps de ferme avec belle cour intérieure, jardin et puits pour un total de 1700m2 environ. L'environnement est très calme et sans aucune circulation.

Situé dans le Limousin, en Creuse, à 5 minutes de la Souterraine (23300) et de l'ensemble des commodités, nous vous proposons cet ensemble immobilier en pierre agencé autour d'une belle cour de plus de 500m2, auquel il faut rajouter un jardin/potager de 650 m2.
Idéal pour un projet personnel, familial, ou professionnel.
Cet ancien corps de ferme dont les bâtiments ouvrent sur ce bel espace extérieur se compose d'une maison d'habitation avec 4 chambres, d'une grange, d'un atelier, d'un double garage, d'une dépendance, d'un puits et d'une petite maison à rénover.
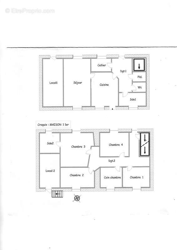
-La maison en pierre déploie 150 m2 habitables sur deux niveaux : au rez de chaussée, une entrée, une très grande cuisine de 24 m2 avec cheminée et cuisinière à bois, une arrière cuisine, un salon séjour traversant de 27 m2, une salle de douche et un wc séparé.
A l'étage, 4 chambres (11m2-10,50m2-13m2-13,80m2) dont une avec salle de douche attenante de 7 m2 et wc. Egalement un bureau et la possibilité de gagner 16 m2 habitables supplémentaires selon les besoins de chacun. Beau parquet d'origine.
Au dessus, les combles avec de la terre cuite au sol, dans lesquels on peut envisager un agrandissement.
La maison est habitable et dispose du tout-à-l'égout, un atout rare en milieu rural.
Le chauffage est une Chaudière fioul et bois.

-Face à la maison, une grange de 120 m2 en très bon état, un atelier de 38 m2 et une maison de 60 m2 à rénover en totalité. Egalement un double garage de 26 m2.
Dans la cour extérieure de 500m2, un puits en activité.
L'ensemble a du cachet par la disposition des divers bâtiments en pierre autour de cette grande cour extérieure qui sert à la fois de lieu de vie extérieur et de stationnement. Très sécurisant si vous avez des enfants et des animaux.
Le jardin de plus de 600 m2 est un ancien potager qui bénéficie d'une très belle exposition, tout comme la maison.
Belle campagne environnante.
Si vous recherchez un lieu calme, sécurisé, avec les commodités, écoles et gare à proximité, si vous avez un projet de vie avec deux familles ou besoin de surface utile pour un projet professionnel, alors contactez-nous afin d'en discuter et que nous organisions une visite.

Raphael Poursain immobilier - Vous souhaitez davantage de renseignements ? Contactez Raphael ou Caroline
Tout renseignement complémentaire se fera exclusivement par téléphone, merci de votre compréhension. Pour voir plus de photos de ce bien, consultez notre site internet
raphael-poursain.optimhome.com

Raphael Poursain Immobilier

Les honoraires d'agence sont à la charge de l'acquéreur, soit 9,50% TTC du prix hors honoraires.
Logement à consommation énergétique excessive : classe F
Les informations sur les risques auxquels ce bien est exposé sont disponibles sur le site Géorisques : www. georisques. gouv. fr.

Contactez Raphael POURSAIN Entrepreneur Individuel à Responsabilité Limitée, Agent commercial OptimHome (RSAC N°822 845 053 Greffe de LIMOGES) [Coordonnées masquées] (réf. 606024 )
Voir plus

Référence: 830035659128
DPE
A
B
C
D
E
F
G
GES
A
B
C
D
E
F
G
Maison à LA SOUTERRAINE
Maison à LA SOUTERRAINE
Maison à LA SOUTERRAINE
Maison à LA SOUTERRAINE
Maison à LA SOUTERRAINE
Maison à LA SOUTERRAINE
Maison à LA SOUTERRAINE
Maison à LA SOUTERRAINE
Maison à LA SOUTERRAINE
Maison à LA SOUTERRAINE
Maison à LA SOUTERRAINE
Maison à LA SOUTERRAINE
Maison à LA SOUTERRAINE
Maison à LA SOUTERRAINE
Maison à LA SOUTERRAINE
Maison à LA SOUTERRAINE
Maison à LA SOUTERRAINE
Maison à LA SOUTERRAINE
Maison à LA SOUTERRAINE
Maison à LA SOUTERRAINE
Maison à LA SOUTERRAINE
Maison à LA SOUTERRAINE
Maison à LA SOUTERRAINE
Maison à LA SOUTERRAINE
Maison à LA SOUTERRAINE
Maison à LA SOUTERRAINE
Géorisques

Les informations sur les risques auxquels ce bien est exposé sont disponibles sur le site Géorisques : www.georisques.gouv.fr

Ce site est protégé par hCaptcha Politique de confidentialité et Conditions d’utilisation s’appliquent.

En poursuivant votre navigation sans modifier vos paramètres, vous acceptez l'utilisation de cookies susceptibles de réaliser des statistiques de visite. Cliquez ici pour plus d'informations