Bénéficiez des services de nos partenaires locaux soigneusement sélectionnés
pour vous accompagner dans votre parcours d'achat immobilier

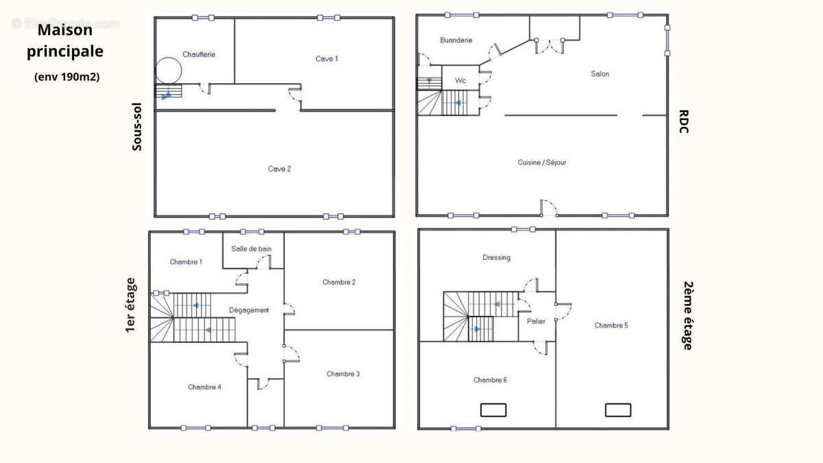
Maison 190 m² à Questembert

— Questembert 56230 —
229 000 €
190 m² / 470 m²
8 pièces
parkingjardin

Nos partenaires locaux
Située à Saint-Gravé (56220), à quelques kilomètres de Questembert, à 20 minutes de Redon, 30 minutes de Vannes et des plages du Morbihan, cette belle propriété en pierre offre un cadre de vie paisible en plein centre bourg.

Sur un terrain clos et arboré de 470 m², la maison principale se déploie sur trois niveaux, pour une surface habitable de 190 m². Le RDC accueille une grande cuisine ouverte sur le jardin, ainsi qu'un grand séjour. Une salle d'eau et des WC séparés complètent ce niveau. À l'étage, quatre belles chambres offrent confort et espace, accompagnées d'une salle de bains et de WC indépendants. Au dernier niveau, deux grands volumes supplémentaires, dont une pièce avec mezzanine et de magnifiques poutres apparentes vous offrent la possibilité de donner libre cours à vos envies : chambres supplémentaires, atelier d'artiste, espace de télétravail, salle de jeux. La maison dispose également d'un sous-sol complet comprenant cave, chaufferie et espaces de rangement.

Enfin, atout rare, la propriété comprend une seconde maison indépendante de 70 m², à rénover, offrant cuisine, salon avec cheminée, deux chambres, salle de bains / WC et grenier aménageable. Parfaite pour un projet locatif, un logement familial indépendant, un atelier ou une activité libérale.

Un bien idéal pour une grande famille, des artistes en quête d'espace ou toute personne souhaitant conjuguer habitation et projet professionnel dans un environnement calme, tout en restant proche des commodités et des axes ferroviaires (ligne Rennes–Quimper à 8 km).

Les informations sur les risques auxquels ce bien est exposé sont disponibles sur le site Géorisques : www.georisques.gouv.fr
Prix de vente : 229 000 ¤
Honoraires charge vendeur

Contactez votre conseiller SAFTI : Virginie GUIBBAUD, Tél. : [Coordonnées masquées], E-mail : [Coordonnées masquées] - EI - Agent commercial immatriculé au RSAC de Rennes sous le numéro 890797699.Informations LOI ALUR : Honoraires charge vendeur. (gedeon_26118_32777139)
Voir plus

Référence: 1442594
Honoraires à la charge du vendeur.
Barème des honoraires
DPE
A
B
C
D
E
F
G
GES
A
B
C
D
E
F
G
Photo 1 - Maison à QUESTEMBERT
Photo 1
Photo 2 - Maison à QUESTEMBERT
Photo 2
Photo 3 - Maison à QUESTEMBERT
Photo 3
Photo 4 - Maison à QUESTEMBERT
Photo 4
Photo 5 - Maison à QUESTEMBERT
Photo 5
Photo 6 - Maison à QUESTEMBERT
Photo 6
Photo 7 - Maison à QUESTEMBERT
Photo 7
Photo 8 - Maison à QUESTEMBERT
Photo 8
Photo 9 - Maison à QUESTEMBERT
Photo 9
Géorisques

Les informations sur les risques auxquels ce bien est exposé sont disponibles sur le site Géorisques : www.georisques.gouv.fr

Ce site est protégé par hCaptcha Politique de confidentialité et Conditions d’utilisation s’appliquent.

En poursuivant votre navigation sans modifier vos paramètres, vous acceptez l'utilisation de cookies susceptibles de réaliser des statistiques de visite. Cliquez ici pour plus d'informations