Bénéficiez des services de nos partenaires locaux soigneusement sélectionnés
pour vous accompagner dans votre parcours d'achat immobilier

Grande maison individuelle avec espace indépendant – terrain 730 m² – Marly

— Marly 57155 —
285 000 €
159 m² / 730 m²
5 pièces
parkingbalcon/terrassejardin

Nos partenaires locaux
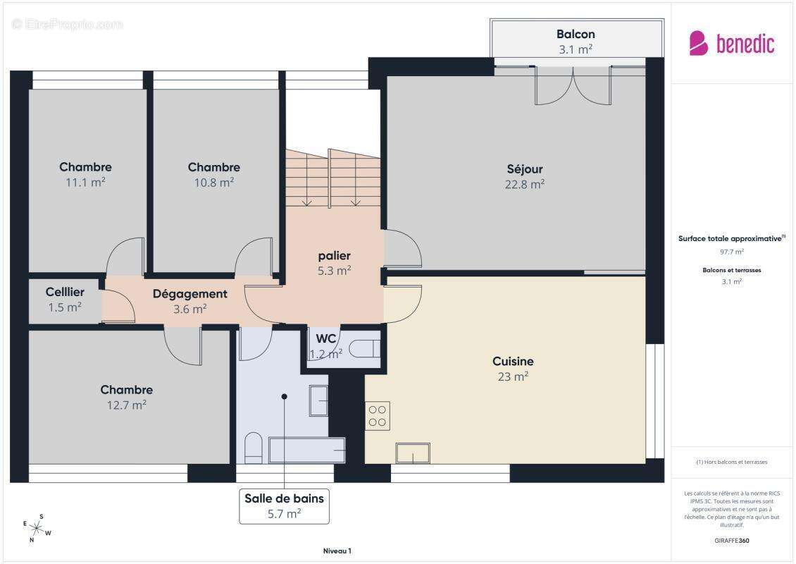
Vous recherchez une maison individuelle avec de l'espace et un vrai potentiel d'aménagement ? Cette maison de 159 m² située à Marly pourrait vous correspondre.

Elle offre une configuration intéressante avec un étage dédié à la vie quotidienne et un rez-de-chaussée permettant de nombreux projets.

Les points forts :

159 m² habitables
Terrain de 730 m²
4 chambres possibles
Grande cuisine de 23 m²
Espace indépendant en rez-de-chaussée
Gran garage + stationnement
Accès direct au jardin

À l'étage :

Un séjour lumineux avec balcon
Une grande cuisine conviviale de 23 m²
3 chambres
Salle de bain et WC séparés

En rez-de-chaussée :

Une pièce de 21 m² idéale pour chambre, bureau ou activité
Une grande buanderie de 22 m²
Garage de 26 m²

Ces espaces sont modulables avec accès direct au jardin

Possibilité de créer un espace indépendant (studio, bureau, activité libérale, logement pour un proche ou projet locatif)

Les extérieurs :

Terrain de 730 m²
Jardin agréable à exploiter selon vos envies
Accès facilité depuis le rez-de-chaussée

Située dans un environnement calme et résidentiel, cette maison bénéficie d'un emplacement recherché à proximité immédiate des écoles, commerces, transports et axes vers Metz. Elle conviendra parfaitement à une famille recherchant de l'espace, un extérieur de qualité et un bien à personnaliser selon ses envies.

Visite virtuelle disponible.

Vous souhaitez visiter ? Contactez Oriane de Coligny au : [Coordonnées masquées]

Rapidité, simplicité, sécurité et sérénité : choisissez homeloop pour vendre votre bien

Oriane DE COLIGNY (EI) Agent Commercial - Numéro RSAC : 979 324 092 - METZ
Voir plus

Référence: 7572924
DPE
A
B
C
D
E
F
G
GES
A
B
C
D
E
F
G
Maison à MARLY
Maison à MARLY
Maison à MARLY
Maison à MARLY
Maison à MARLY
Maison à MARLY
Maison à MARLY
Maison à MARLY
Maison à MARLY
Maison à MARLY
Maison à MARLY
Géorisques

Les informations sur les risques auxquels ce bien est exposé sont disponibles sur le site Géorisques : www.georisques.gouv.fr

Ce site est protégé par hCaptcha Politique de confidentialité et Conditions d’utilisation s’appliquent.