Bénéficiez des services de nos partenaires locaux soigneusement sélectionnés
pour vous accompagner dans votre parcours d'achat immobilier

Maison 57 m² à Poitiers

— Poitiers 86000 —
186 000 €
57 m² / 598 m²
3 pièces
parkingbalcon/terrassejardin

Nos partenaires locaux
86000 POITIERS – SECTEUR MONTMIDI – MAISON 3 PIÈCES – 2 CHAMBRES – SURFACE 56 M² – PARCELLE 598 M² – TERRAIN CONSTRUCTIBLE – CAVE – COMBLES AMÉNAGEABLES

EffiCity, l'agence qui estime votre bien en ligne, vous propose cette maison de 57 m², édifiée dans les années 1930, sur une parcelle de 598 m² située dans le secteur recherché de Montmidi à Poitiers.

Les points techniques :

- chauffage par cheminée (séjour) + cheminées décoratives dans les chambres,
- ballon d'eau chaude 100L,
- menuiseries PVC double vitrage,
- volets battants bois,
- porte d'entrée PVC,
- travaux de rénovation énergétique à prévoir (éligible aux aides de l'État).

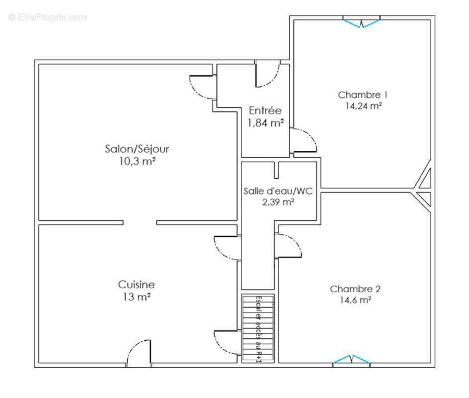
Le bien est réparti de la manière suivante :

- une entrée sur cuisine séparée de 13m²,
- un salon / séjour de 10,3m²,
- seconde entrée sur dégagement (1,84m²),
- deux chambres de 14,24m² et 14,6m²,
- une salle d'eau avec WC de 2,39m².

Annexes :

- une cave de 28,6m²,
- des combles aménageables 20m² (potentiel bureau ou chambre supplémentaire).

Côté extérieur :

- une parcelle arborée de 598 m²,
- terrain constructible,
- jardin.

À noter :
- bien à rénover avec potentiel de valorisation après travaux,
- dispositifs d'aides mobilisables pour la rénovation énergétique (MaPrimeRénov', éco-PTZ…),
- terrain situé en zone UB avec certificat d'urbanisme opérationnel déposé et validé pour un projet de construction.

Environnement :
Secteur Montmidi, à proximité immédiate de la gare et du centre-ville de Poitiers, avec accès rapide aux commodités, écoles et transports.

Bien adapté pour projet de rénovation ou investissement.
Contactez-moi dès maintenant au [Coordonnées masquées] pour organiser une visite.
Les informations sur les risques auxquels ce bien est exposé sont disponibles sur le site Georisque : georisques. gouv. fr
Morgane Daniault - EI - est Agent Commercial mandataire en immobilier, immatriculé au Registre Spécial des Agents Commerciaux du Tribunal de Commerce de Poitiers sous le n°983449257.
Siège social du mandant : effiCity, 48 avenue de Villiers - 75017 PARIS - Société par Actions Simplifiée, société au capital de 132 373,05 euros, immatriculée au RCS Paris 497 617 746 et titulaire de la Carte professionnelle CPI 75[Coordonnées masquées]02 025 - CCI Paris IDF - Caisse de Garantie : GALIAN Assurances 89 rue de la Boétie 75008 Paris
Voir plus

Référence: 212478
Honoraires d'agence de 3.33% à la charge de l'acquéreur
Barème des honoraires
DPE
A
B
C
D
E
F
G
GES
A
B
C
D
E
F
G
Maison à POITIERS
Maison à POITIERS
Maison à POITIERS
Maison à POITIERS
Maison à POITIERS
Maison à POITIERS
Maison à POITIERS
Maison à POITIERS
Maison à POITIERS
Maison à POITIERS
Maison à POITIERS
Maison à POITIERS
Maison à POITIERS
Maison à POITIERS
Maison à POITIERS
Maison à POITIERS
Maison à POITIERS
Maison à POITIERS
Maison à POITIERS
Maison à POITIERS
Géorisques

Les informations sur les risques auxquels ce bien est exposé sont disponibles sur le site Géorisques : www.georisques.gouv.fr

Ce site est protégé par hCaptcha Politique de confidentialité et Conditions d’utilisation s’appliquent.