À vendre – terrains constructibles à langueux (rue lamartine)

— Langueux 22360 —
82 900 €
325 m²

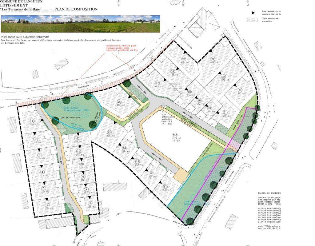
Situés dans un nouveau lotissement de 28 lots à Langueux, rue Lamartine, plusieurs terrains constructibles sont encore disponibles. Environnement calme et agréable, idéal pour votre projet de construction.

Lots disponibles :

Lot 4 : 325 m² – 82 900 €
Lot 5 : 325 m² – 82 900 €
Lot 23 : 529 m² – 136 900 €
Lot 25 : 405 m² – 102 900 €
Lot 26 : 424 m² – 107 900 €
Lot 28 : 530 m² – 134 900 €

Terrains viabilisés, proches des commodités, écoles et axes principaux. Dépôt permis de construire en fin d'année 2026

Pour plus d'informations ou pour organiser une visite, n'hésitez pas à me contacter.
Terrain disponible en fonction de notre partenaire foncier
Voir plus

Référence: PP-22
Terrain à LANGUEUX
Terrain à LANGUEUX
Géorisques

Les informations sur les risques auxquels ce bien est exposé sont disponibles sur le site Géorisques : www.georisques.gouv.fr

Ce site est protégé par hCaptcha Politique de confidentialité et Conditions d’utilisation s’appliquent.

En poursuivant votre navigation sans modifier vos paramètres, vous acceptez l'utilisation de cookies susceptibles de réaliser des statistiques de visite. Cliquez ici pour plus d'informations