Maison ossature bois récente Villers les Luxeuil 5 pièces

— Villers-Les-Luxeuil 70300 —
199 000 €
104 m² / 1 679 m²
5 pièces
jardin

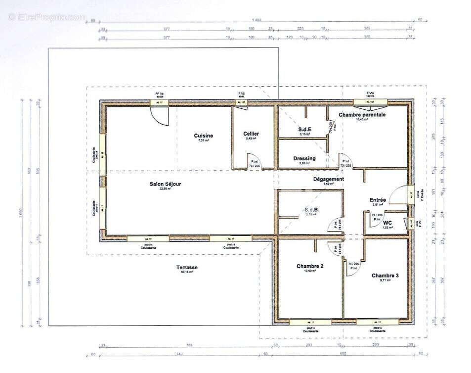
Maison individuelle construite en 2019, en ossature bois, sur un terrain de 1 679 m². Cette maison de plain-pied offre une surface habitable de 104 m² ainsi qu'un garage attenant. Elle se compose d'un grand espace de vie lumineux avec salon, séjour et cuisine ouverte. Un cellier complète cet espace. Un dégagement dessert une suite parentale comprenant une salle d'eau et un dressing, ainsi que deux chambres supplémentaires, une salle de bain et un WC séparé. Le chauffage est assuré par une pompe à chaleur plancher chauffant. Les menuiseries sont en PVC double vitrage, équipées de volets roulants en aluminium. Le bien est actuellement loué avec un loyer mensuel de 880 euros hors charges. La taxe foncière s'élève à 688 euros. Une opportunité pour des investisseurs recherchant un bien individuel de plain-pied récent avec une perspective d'occupation à l'issue du bail locatif, estimée à court terme, environ deux ans. Possibilité d'acquérir deux maisons. Honoraires charge vendeurs
Voir plus

Référence: 1371
Honoraires à la charge du vendeur.
DPE
A
B
C
D
E
F
G
GES
A
B
C
D
E
F
G
Maison à VILLERS-LES-LUXEUIL
Maison à VILLERS-LES-LUXEUIL
Maison à VILLERS-LES-LUXEUIL
Maison à VILLERS-LES-LUXEUIL
Maison à VILLERS-LES-LUXEUIL
Maison à VILLERS-LES-LUXEUIL
Géorisques

Les informations sur les risques auxquels ce bien est exposé sont disponibles sur le site Géorisques : www.georisques.gouv.fr

Ce site est protégé par hCaptcha Politique de confidentialité et Conditions d’utilisation s’appliquent.