Maison - Valleiry

— Valleiry 74520 —
439 900 €
96 m² / 50 m²
4 pièces
parkingbalcon/terrassejardin

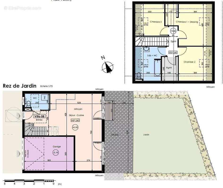
A vendre à Valleiry (74520), au sein d’un charmant ensemble résidentiel de 9 villas, agréable maison mitoyenne T4, lumineuse et confortable. Au rez-de-chaussée, vous apprécierez une entrée fonctionnelle, une belle pièce de vie ouverte sur l’extérieur, ainsi qu’un WC séparé. À l’étage, l’espace nuit se compose de trois chambres, dont une suite parentale avec dressing, d’une salle de bains avec WC, et d’un espace de rangement. Profitez d’un agréable jardin et d’une belle terrasse, parfaits pour des repas en plein air et des instants de détente au soleil couchant. CLASSE ENERGIE: NA
"Les informations sur les risques auxquels ce bien est exposé sont disponibles sur le site Géorisques : www.georisques.gouv.fr".
Voir plus

Référence: 782
Barème des honoraires
Maison à VALLEIRY
Maison à VALLEIRY
Géorisques

Les informations sur les risques auxquels ce bien est exposé sont disponibles sur le site Géorisques : www.georisques.gouv.fr

Ce site est protégé par hCaptcha Politique de confidentialité et Conditions d’utilisation s’appliquent.