Bénéficiez des services de nos partenaires locaux soigneusement sélectionnés
pour vous accompagner dans votre parcours d'achat immobilier

Rare : maison de plain-pied en centre-ville guer (56380) avec cht immobilier

— Guer 56380 —
201 400 €
96 m² / 1 224 m²
5 pièces
parkingjardin

Nos partenaires locaux
LE CONFORT DU 'TOUT À PIED' SUR UN MAGNIFIQUE TERRAIN ARBORÉ
L'agence CHT IMMOBILIER vous présente cette maison d'habitation de plain-pied, idéalement située au cœur de Guer. Profitez d'une qualité de vie exceptionnelle où tout est accessible à pied : commerces, services médicaux, pharmacies et écoles. Ce bien rare sur le marché allie la praticité du centre-ville à la sérénité d'un vaste jardin privé.
Une Vie de Plain-Pied Fonctionnelle et Chaleureuse
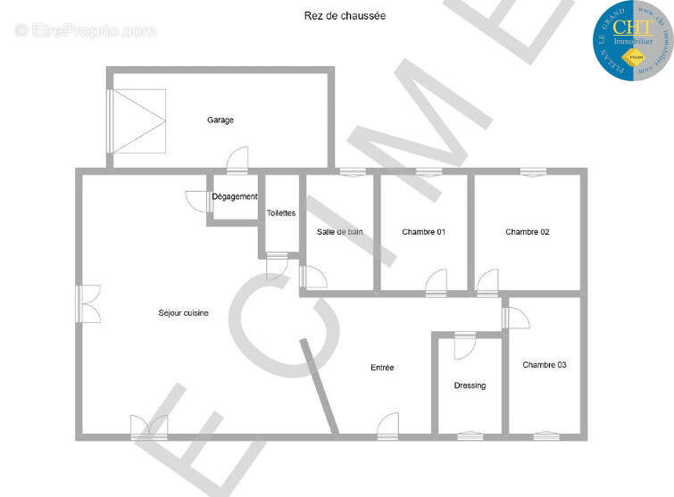
La maison offre une distribution optimisée et des espaces de vie conviviaux : Espace de vie : Une entrée accueillante avec placard intégré ouvrant sur une cuisine aménagée ouverte sur un salon-séjour lumineux. La présence d'une cheminée apporte une atmosphère chaleureuse à cette pièce centrale. Espace nuit et travail : Le dégagement dessert deux chambres confortables, un bureau (idéal pour le télétravail ou une chambre d'appoint) et une lingerie pratique. Sanitaires : Une salle de bains et un WC indépendant complètent l'habitation.
Dépendances et Espaces Techniques
Le bien dispose de nombreux espaces de stockage et de services : Garage attenant : Comprenant un espace buanderie dédié pour plus de confort et une cave, parfaite pour la conservation et le rangement. Extérieur : Un abri de jardin pour vos outils et équipements de loisirs.
Un Parc de Verdure en Ville
La propriété est édifiée sur un superbe terrain arboré d'environ 1 224 m2. Ce jardin spacieux et clos constitue un véritable havre de paix, offrant un espace de détente rare pour un emplacement en centre-ville.
Atouts techniques : Chauffage : Radiateurs électriques complétés par la cheminée. Assainissement : Maison raccordée au tout-à-l'égout. Localisation : Emplacement No1 à Guer, à 10 minutes de Plélan-le-Grand et 35 minutes de Rennes.
UNE OPPORTUNITÉ UNIQUE POUR UNE VIE FACILITÉE AU QUOTIDIEN !
Pour plus d’informations ou pour organiser une visite, contactez l'agence CHT IMMOBILIER au [Coordonnées masquées].
Les informations sur les risques auxquels ce bien est exposé sont disponibles sur le site Géorisques : 'www.georisques.gouv.fr'.
Vous avez un projet immobilier sur le secteur de Brocéliande ? Pour vendre, acheter ou louer une maison à Plélan le Grand, Guer, Beignon, Saint Malo de Beignon, Porcaro, Augan, Monteneuf, Concoret,Campénéac, Paimpont, Saint Péran, Iffendic, Monterfil, Montfort sur Meu, Saint Thurial, Bovel, Loutehel, Val d'Anast, Maxent, Treffendel, Saint Malon sur Mel, Baulon... contactez nous.
Sept conseillers à votre service, trois vitrines à Plélan le grand, Saint Cyr Coëtquidan et Beignon et publication de nos annonces sur plus de 80 sites internet. Plus d'offres sur cht-immobilier.com
Voir plus

Honoraires d'agence de 6% à la charge de l'acquéreur
Barème des honoraires
DPE
A
B
C
D
E
F
G
GES
A
B
C
D
E
F
G
Maison à GUER
Maison à GUER
Maison à GUER
Maison à GUER
Maison à GUER
Maison à GUER
Maison à GUER
Maison à GUER
Maison à GUER
Maison à GUER
Maison à GUER
Maison à GUER
Maison à GUER
Maison à GUER
Maison à GUER
Maison à GUER
Maison à GUER
Maison à GUER
Maison à GUER
Maison à GUER
Maison à GUER
Maison à GUER
Maison à GUER
Maison à GUER
Géorisques

Les informations sur les risques auxquels ce bien est exposé sont disponibles sur le site Géorisques : www.georisques.gouv.fr

Ce site est protégé par hCaptcha Politique de confidentialité et Conditions d’utilisation s’appliquent.