Bénéficiez des services de nos partenaires locaux soigneusement sélectionnés
pour vous accompagner dans votre parcours d'achat immobilier

Studio plein sud proche remontées calme vue dégagée

— Les Orres 05200 —
79 500 €
23 m²
1 pièce
balcon/terrasse

Nos partenaires locaux
Rare à la vente !
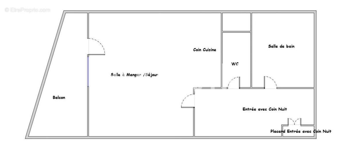
Situé à seulement quelques mètres du centre de la station 1650, tout en bénéficiant d’un environnement calme, découvrez ce charmant studio à environ 300 mètres des remontées mécaniques et des commerces.
Implanté en étage élevé d’une résidence confortable, cet appartement profite d’une exposition plein sud offrant une belle luminosité ainsi qu’une jolie vue dégagée sur les environs.
Fonctionnel et optimisé pour accueillir jusqu’à 4 personnes, il se compose :

d’une entrée avec rangements,
d’un coin montagne avec lits superposés,
d’une salle de bains,
de WC indépendants,
d’un séjour lumineux avec canapé convertible,
d’un espace cuisine pratique.

Vous profiterez également d’un balcon ensoleillé, idéal pour apprécier le cadre montagnard.
Grand parking au pied de la copropriété Casier à skis inclus Proximité immédiate des commodités
Photos améliorées (luminosité/couleurs) à des fins de présentation, non contractuelles Honoraire charge vendeur - Les informations sur les risques auxquels ce bien est exposé sont disponibles sur le site Géorisques : www.georisques.gouv.frCette annonce vous est proposée par AMK IMMOBILIER – SAS au capital de 1 000€ – Siren : 909 760 563 – Carte professionnelle no CPI[Coordonnées masquées]0000009 délivrée par la CCI des Hautes-Alpes.Siège social : 181 chemin des Aires, 05200 Crots.Assurance Responsabilité Civile Professionnelle : ALLIANZ FRANCE - Non-détention de fonds – Absence de garantie financière.
Voir plus

Référence: 36
Bien en copropriété. Nombre de lots : 66. Charges de copropriété : 1520 €.
Honoraires à la charge du vendeur.
Barème des honoraires
DPE
A
B
C
D
E
F
G
GES
A
B
C
D
E
F
G
Appartement à LES ORRES
Appartement à LES ORRES
Appartement à LES ORRES
Appartement à LES ORRES
Appartement à LES ORRES
Appartement à LES ORRES
Appartement à LES ORRES
Appartement à LES ORRES
Appartement à LES ORRES
Géorisques

Les informations sur les risques auxquels ce bien est exposé sont disponibles sur le site Géorisques : www.georisques.gouv.fr

Ce site est protégé par hCaptcha Politique de confidentialité et Conditions d’utilisation s’appliquent.