Bénéficiez des services de nos partenaires locaux soigneusement sélectionnés
pour vous accompagner dans votre parcours d'achat immobilier

A vendre lyon 9 (la duchere) appartement 3 pieces de 65,90m2 immeuble 2008

— Lyon-9e 69009 —
195 000 €
65 m²
3 pièces
parkingbalcon/terrasse

Nos partenaires locaux
À VENDRE EN EXCLUSIVITÉ LYON 9e (La Duchère)


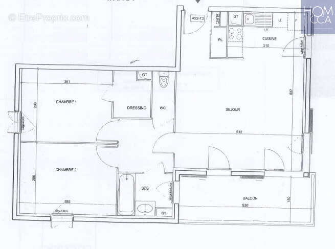
À deux pas du Lycée La Martinière Duchère, dans un écoquartier en plein développement, découvrez cet appartement 3 pièces de 65,90 m2, idéalement situé au cœur des commerces et des transports.


** VISITE VIRTUELLE DISPONIBLE **


Installé au 3ᵉ étage avec ascenseur d’une résidence récente et sécurisée datant de 2009, ce bien séduit par son calme et sa luminosité, grâce à une exposition sud-ouest.


L’appartement s’ouvre sur une entrée avec placard, menant à une agréable pièce de vie de 28 m2 avec cuisine meublée et partiellement équipée. Cet espace convivial se prolonge par un balcon-terrasse de 9 m2, parfait pour profiter des beaux jours. L’espace nuit, bien distinct, offre deux chambres confortables, dont une avec dressing aménagé. Une salle de bains et des toilettes séparées complètent l’ensemble.


La localisation constitue un véritable atout : toutes les commodités sont accessibles au pied de l’immeuble, et la Gare de Lyon-Vaise est rapidement accessible en seulement 5 minutes grâce aux nombreuses lignes de bus (C14, C6, 89, 66, 21, S11)


Un garage sécurisé en sous-sol avec borne de recharge pour véhicule électrique est proposé en supplément au prix de 15 000 €


Les charges mensuelles restent maîtrisées à 122 €, incluant l’eau chaude et le chauffage. La taxe foncière s’élève à 1 005 € par an


Prix de vente : 195 000 € (honoraires à la charge du vendeur)


Pour tout renseignement ou organiser une visite, contactez Cyril SILVY
Cette annonce vous est proposée par SILVY Cyril - - NoRSAC: , Enregistré au Greffe du tribunal de commerce de LYON
Voir plus

Référence: CS371
Bien en copropriété. Nombre de lots : 117. Charges de copropriété : 1461 €.
Barème des honoraires
DPE
A
B
C
D
E
F
G
GES
A
B
C
D
E
F
G
Appartement à LYON-9E
Appartement à LYON-9E
Appartement à LYON-9E
Appartement à LYON-9E
Appartement à LYON-9E
Appartement à LYON-9E
Appartement à LYON-9E
Appartement à LYON-9E
Appartement à LYON-9E
Appartement à LYON-9E
Appartement à LYON-9E
Appartement à LYON-9E
Géorisques

Les informations sur les risques auxquels ce bien est exposé sont disponibles sur le site Géorisques : www.georisques.gouv.fr

Ce site est protégé par hCaptcha Politique de confidentialité et Conditions d’utilisation s’appliquent.