Bénéficiez des services de nos partenaires locaux soigneusement sélectionnés
pour vous accompagner dans votre parcours d'achat immobilier

Triplex lumineux de 195,75 m² avec spa, patio et terrasse.

— Paris-14e 75014 —
2 800 200 €
195 m²
4 pièces
parkingbalcon/terrasseascenseurpiscineaccès handicapé

Nos partenaires locaux
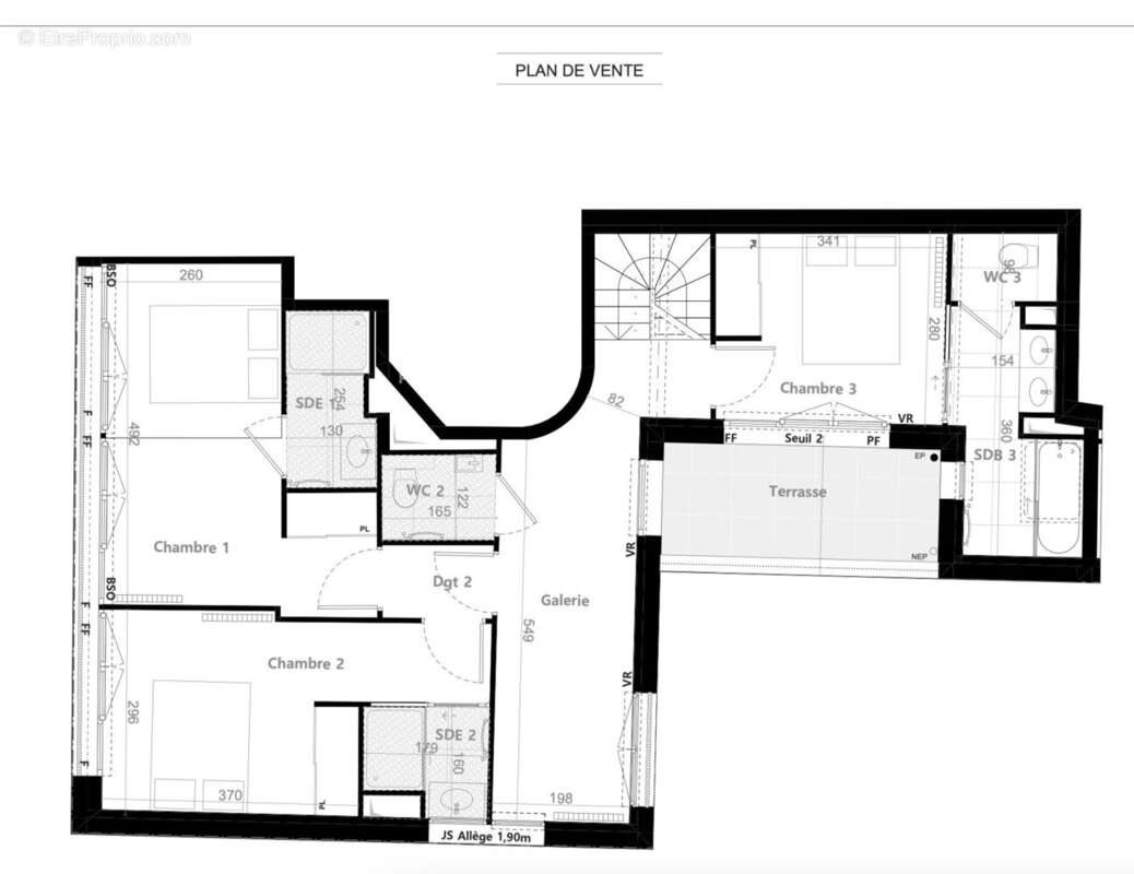
Découvrez ce somptueux triplex de 195,75 m² habitables qui se vit comme une maison contemporaine, répartie sur trois niveaux, avec 41,36 m² d'espaces extérieurs, dont un patio arboré de 22,79 m², une terrasse de 6,56 m², ainsi qu'un espace prévu pour un spa de nage (12,01 m², en option).
Le niveau inférieur (R-1), entièrement dédié au bien-être et aux loisirs, offre un vaste espace Wellness de 32,86 m², une salle de jeux de 10,19 m², une salle d'eau (2,80 m²), un WC indépendant (1,44 m²), une buanderie de 5,53 m², ainsi qu'un local technique (3,72 m²). Accessible par un escalier en bois avec contre-marches, cet étage s'ouvre directement sur le patio privatif avec possibilité d'intégrer un spa de nage (profondeur 1,40 m environ).
Le rez-de-jardin accueille les pièces de vie, baignées de lumière naturelle grâce à de larges ouvertures. On y trouve une entrée de 2,93 m², une cuisine ouverte de 12,06 m², une salle à manger conviviale de 24,62 m² et un vaste séjour de 33,56 m², donnant accès à une terrasse de 6,56 m². L'ensemble est relié aux étages supérieurs par un escalier métallique aux marches en bois lasuré, alliant sobriété et élégance.
À l'étage, l'espace nuit se compose d'une suite parentale de 14,88 m² avec sa salle d'eau privative (3,02 m²), d'une deuxième chambre de 12,77 m² avec également sa salle d'eau attenante (2,55 m²), ainsi qu'une troisième chambre de 9,06m². Une salle de bains indépendante de 5,48 m², un WC séparé (1,49 m²), et un dégagement/galerie de 13,18 m² complètent ce niveau.
Ce bien d'exception prend place dans une résidence intimiste et élégante composée de 10 logements seulement. Les façades en brique apparente s'inscrivent avec harmonie dans l'environnement architectural du quartier. La résidence est sécurisée (digicode, vidéophone, Vigik), dispose d'un hall décoré et d'un local à vélos.
Les prestations intérieures sont haut de gamme : parquet en chêne massif ou contrecollé dans les pièces principales, carrelage grès cérame grand format dans les pièces humides, menuiseries bois ou aluminium avec double vitrage, volets roulants électriques, WC suspendus, placards aménagés avec miroirs, chauffage par réseau urbain, radiateurs sèche-serviettes, domotique intégrée (volets, éclairage, chauffage), et finitions soignées dans toutes les salles d'eau. Le tout conforme aux dernières normes techniques et environnementales : RT 2012 20 %, label Santé+, réglementation acoustique NRA, certification BEE.
À seulement 150 mètres de la station de métro Alésia (ligne 4), la résidence bénéficie d'un emplacement rare, calme et central, dans le quartier vivant du Petit-Montrouge. À proximité immédiate : commerces de bouche, écoles, restaurants, cinéma Pathé, théâtre 14, parcs, et de nombreux équipements culturels. Le Parc Montsouris, la gare Montparnasse, la Fondation Cartier et les grands axes parisiens sont accessibles en quelques minutes à pied, en vélo ou en transport.
Contactez-nous pour plus d'informations !
Images d'illustration, non contractuelles.
Voir plus

Référence: 86848695
Barème des honoraires
DPE
A
B
C
D
E
F
G
GES
A
B
C
D
E
F
G
Appartement à PARIS-14E
Appartement à PARIS-14E
Appartement à PARIS-14E
Appartement à PARIS-14E
Appartement à PARIS-14E
Appartement à PARIS-14E
Appartement à PARIS-14E
Géorisques

Les informations sur les risques auxquels ce bien est exposé sont disponibles sur le site Géorisques : www.georisques.gouv.fr

Ce site est protégé par hCaptcha Politique de confidentialité et Conditions d’utilisation s’appliquent.