Bénéficiez des services de nos partenaires locaux soigneusement sélectionnés
pour vous accompagner dans votre parcours d'achat immobilier

Grande maison 191 m² -6 chambres- studio indépendant - centre Plozévet - proche mer

— Plozevet 29710 —
264 900 €
191 m² / 1 500 m²
10 pièces
parkingjardin

Nos partenaires locaux
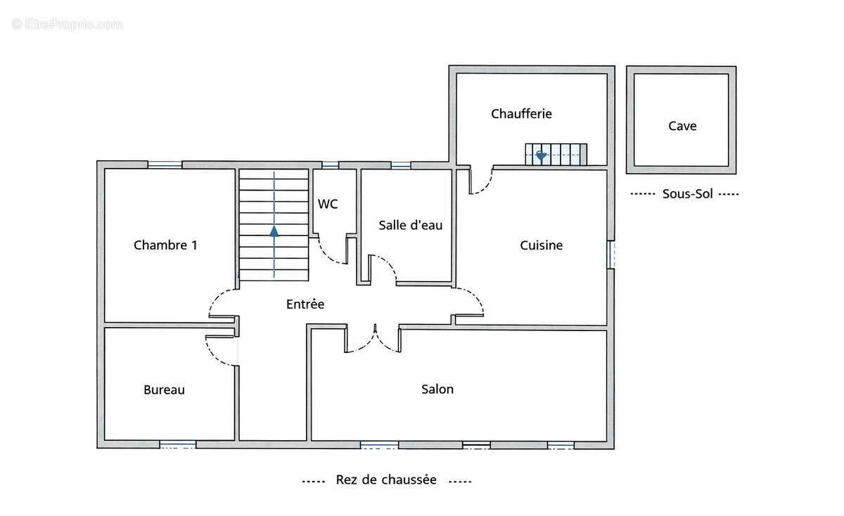
En plein coeur de Plozévet, à seulement 20 minutes de Quimper et à proximité des plages de la baie d'Audierne (2.5km), cette maison de grand volume offre un cadre de vie idéal entre mer et campagne. Située à deux pas des commerces, des écoles et des services, elle permet de profiter pleinement de la vie du bourg tout en bénéficiant d'un accès rapide vers Quimper et le sud Finistère. La maison développe environ 191 m² habitables et se distingue par ses beaux volumes et son potentiel d'aménagement. Elle se compose notamment : d'une pièce de vie lumineuse d'une cuisine de 6 chambres de salles d'eau / salle de bains de nombreux espaces de rangement Un studio indépendant d'environ 30 m² avec accès séparé complète l'ensemble. Il représente un véritable atout et pourra convenir pour : un revenu locatif accueillir famille ou amis un bureau ou activité indépendante un projet de location saisonnière La maison nécessite des travaux de rafraîchissement, offrant ainsi l'opportunité de la personnaliser selon vos envies et de valoriser pleinement son potentiel. Grâce à sa configuration et à ses volumes, ce bien conviendra aussi bien pour : une grande maison familiale une résidence secondaire un projet de chambres d'hôtes un investissement locatif (3.88 % honoraires TTC à la charge de l'acquéreur.) christophe schepens (EI) Agent Commercial - Numéro RSAC : - .
Voir plus

Référence: 16
Honoraires d'agence de 3.88% à la charge de l'acquéreur
Barème des honoraires
DPE
A
B
C
D
E
F
G
GES
A
B
C
D
E
F
G
Maison à PLOZEVET
Maison à PLOZEVET
Maison à PLOZEVET
Maison à PLOZEVET
Maison à PLOZEVET
Maison à PLOZEVET
Maison à PLOZEVET
Maison à PLOZEVET
Maison à PLOZEVET
Maison à PLOZEVET
Maison à PLOZEVET
Maison à PLOZEVET
Maison à PLOZEVET
Maison à PLOZEVET
Maison à PLOZEVET
Maison à PLOZEVET
Maison à PLOZEVET
Maison à PLOZEVET
Géorisques

Les informations sur les risques auxquels ce bien est exposé sont disponibles sur le site Géorisques : www.georisques.gouv.fr

Ce site est protégé par hCaptcha Politique de confidentialité et Conditions d’utilisation s’appliquent.