Bénéficiez des services de nos partenaires locaux soigneusement sélectionnés
pour vous accompagner dans votre parcours d'achat immobilier

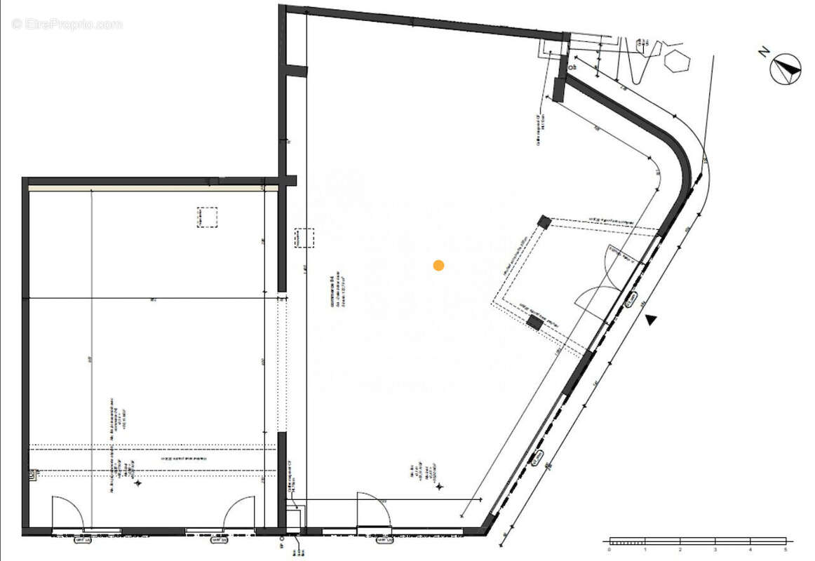
Commerce 190 m² à Avrille

— Avrille 49240 —
444 140 €
190 m²

Nos partenaires locaux
A vendre local commercial d'angle Les Hauts Saint-Aubin
Commune d'Avrillé Quartier Bois du Roy

Local commercial d'angle d'environ 190 m² en rez-de-chaussée
avec linéaire vitrine de 16 mètres et plusieurs accès en façade compatibles PMR.
La cellule commerciale est brut de béton , fourreaux en attente, huisseries posées.
Réglementation environnementale RE2020
L'aménagement à prévoir en fonction de l'activité.

Idéalement positionné dans le quartier Bois du Roy, à deux pas du centre-ville d'Avrillé, à 10 min en voiture du centre-ville d'Angers, l'emplacement s'inscrit dans un environnement résidentiel dense avec une zone de chalandise captive de près de 15 000 habitants.
Le secteur est desservi par le tramway ligne A (arrêts Plateau de la Mayenne et/ou Bois du Roy) ainsi que le Bus ligne 7.

Vous souhaitez investir ou implanter votre activité dans un quartier en pleine expansion sur le Territoire Angevin ?
Contactez-nous pour plus d'information.

Conditions de vente :
Prix de vente HT net vendeur 419 000 €
Honoraires de commercialisation à la charge de l'acquéreur 6% HT en sus du prix de vente HT net vendeur, soit 25 140 € HT.

Honoraires inclus de 6% HT à la charge de l'acquéreur. Prix hors honoraires 419 000 € HT. Dans une copropriété de 266 lots. Aucune procédure n'est en cours. Non soumis au DPE. Les informations sur les risques auxquels ce bien est exposé sont disponibles sur le site Géorisques : georisques.gouv.fr.

Votre conseiller LOCAUX-BUREAUX-COMMERCES : Nicolas FOULON
Agent commercial (Entreprise individuelle)
RSAC ADC 44[Coordonnées masquées]00 873
RCP RCACO-20-016231 GALIAN SMA BTP.
LOCAUX-BUREAUX-COMMERCES [Coordonnées masquées]
Voir plus

Référence: NFV2602LC34-LBC44
Bien en copropriété. Nombre de lots : 266.
Honoraires d'agence de 6% à la charge de l'acquéreur
Barème des honoraires
Commerce à AVRILLE
Commerce à AVRILLE
Commerce à AVRILLE
Commerce à AVRILLE
Commerce à AVRILLE
Commerce à AVRILLE
Commerce à AVRILLE
Commerce à AVRILLE
Commerce à AVRILLE
Géorisques

Les informations sur les risques auxquels ce bien est exposé sont disponibles sur le site Géorisques : www.georisques.gouv.fr

Ce site est protégé par hCaptcha Politique de confidentialité et Conditions d’utilisation s’appliquent.