Bénéficiez des services de nos partenaires locaux soigneusement sélectionnés
pour vous accompagner dans votre parcours d'achat immobilier

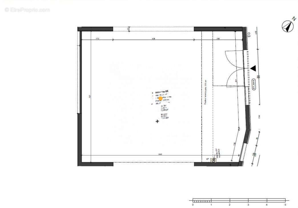
Commerce 60 m² à Avrille

— Avrille 49240 —
147 500 €
60 m²
accès handicapé

Nos partenaires locaux
A vendre Commune d'Avrillé Quartier Bois du Roy

Local commercial d'angle d'environ 60 m² en rez-de-chaussée
avec accès PMR en façade.
La cellule commerciale est brut de béton , fourreaux en attente, huisseries posées.
L'aménagement à prévoir en fonction de l'activité.
Norme environnementale RE 2020
L'emplacement est desservi par le tramway ligne A (arrêts Plateau de la Mayenne-Bois du Roy) et par le Bus ligne 7

Idéalement positionné Plateau de la Mayenne à 10 minute du centre-ville d'Angers et à deux pas du centre-ville d'Avrillé, L'emplacement est stratégique dans un environnement résidentiel dense.

Vous souhaitez investir ou implanter votre activité dans un quartier en pleine expansion sur une commune dynamique?
Contactez-nous pour plus d'information.

Conditions de vente :
Prix de vente HT net vendeur 139 000 €
Honoraires de commercialisation forfaitaire 8 500 € HT en sus du prix de vente HT net vendeur à la charge de l'acquéreur.

Honoraires inclus de 6.12% HT à la charge de l'acquéreur. Prix hors honoraires 139 000 € HT. Dans une copropriété de 266 lots. Aucune procédure n'est en cours. Non soumis au DPE. Les informations sur les risques auxquels ce bien est exposé sont disponibles sur le site Géorisques : georisques.gouv.fr.

Votre conseiller LOCAUX-BUREAUX-COMMERCES : Nicolas FOULON
Agent commercial (Entreprise individuelle)
RSAC ADC 44[Coordonnées masquées]00 873
RCP RCACO-20-016231 GALIAN SMA BTP.
LOCAUX-BUREAUX-COMMERCES [Coordonnées masquées]
Voir plus

Référence: NFV2602LC6-LBC44
Bien en copropriété. Nombre de lots : 266.
Honoraires d'agence de 6.12% à la charge de l'acquéreur
Barème des honoraires
Commerce à AVRILLE
Commerce à AVRILLE
Commerce à AVRILLE
Commerce à AVRILLE
Commerce à AVRILLE
Commerce à AVRILLE
Commerce à AVRILLE
Commerce à AVRILLE
Commerce à AVRILLE
Géorisques

Les informations sur les risques auxquels ce bien est exposé sont disponibles sur le site Géorisques : www.georisques.gouv.fr

Ce site est protégé par hCaptcha Politique de confidentialité et Conditions d’utilisation s’appliquent.