Bénéficiez des services de nos partenaires locaux soigneusement sélectionnés
pour vous accompagner dans votre parcours d'achat immobilier

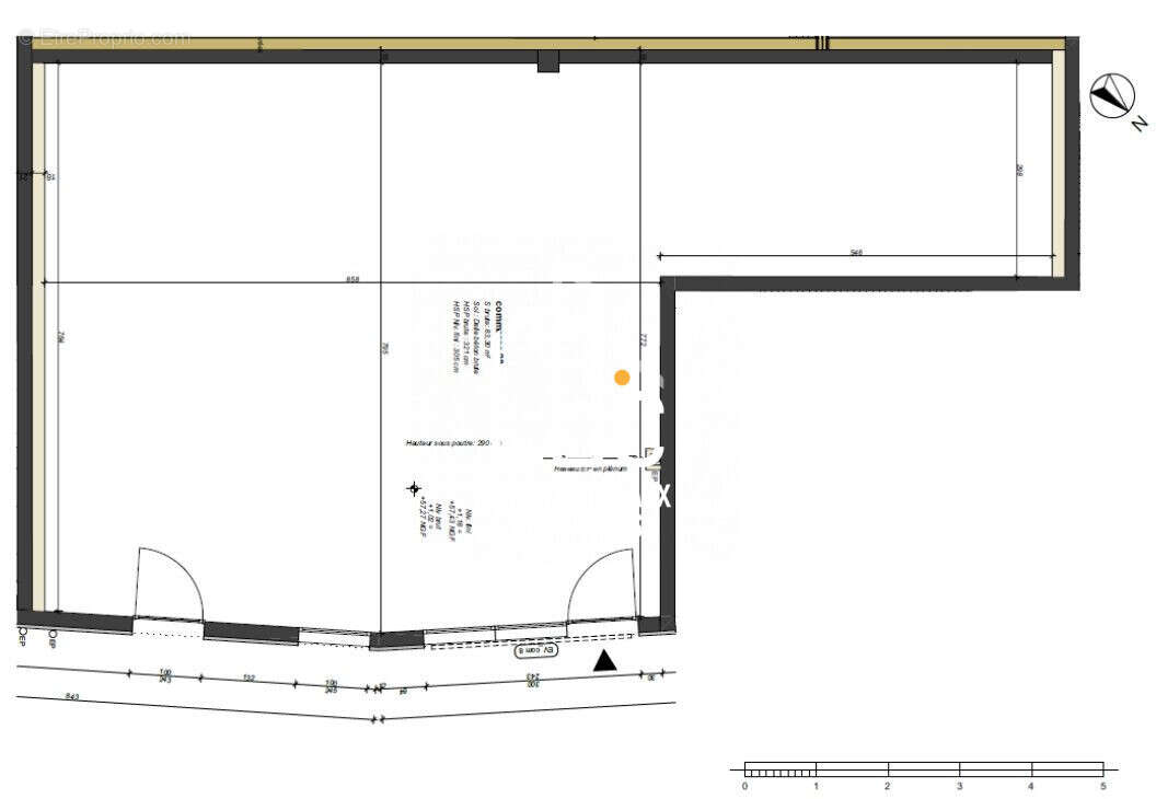
Commerce 82 m² à Avrille

— Avrille 49240 —
192 920 €
82 m²
accès handicapé

Nos partenaires locaux
A vendre local commercial Les Hauts Saint-Aubin
Commune d'Avrillé Quartier Bois du Roy

Local commercial d'environ 82 m² en rez-de-chaussée d'un immeuble mixte d'habitations et de commerces avec accès PMR en façade.
La cellule commerciale est brut de béton , fourreaux en attente, huisseries posées.
L'aménagement à prévoir en fonction de l'activité envisagée.

Idéalement positionné dans le quartier Bois du Roy, à deux pas du centre-ville d'Avrillé, desservi par le tramway ligne A (arrêts Plateau de la Mayenne et/ou Bois du Roy) et le Bus ligne 7.
Le centre-ville d'Angers est à 10 min en voiture

Vous souhaitez investir ou implanter votre activité dans un quartier en pleine expansion ?
Contactez-nous pour plus d'informations.

Conditions de vente :
Prix de vente HT net vendeur 182 000 €
Honoraires de commercialisation à la charge de l'acquéreur 6% HT en sus du prix de vente HT net vendeur, soit 10 920 € HT.

Honoraires inclus de 6% HT à la charge de l'acquéreur. Prix hors honoraires 182 000 € HT. Dans une copropriété de 266 lots. Aucune procédure n'est en cours. Non soumis au DPE. Les informations sur les risques auxquels ce bien est exposé sont disponibles sur le site Géorisques : georisques.gouv.fr.

Votre conseiller LOCAUX-BUREAUX-COMMERCES : Nicolas FOULON
Agent commercial (Entreprise individuelle)
RSAC ADC 44[Coordonnées masquées]00 873
RCP RCACO-20-016231 GALIAN SMA BTP.
LOCAUX-BUREAUX-COMMERCES [Coordonnées masquées]
Voir plus

Référence: NFV2602LC8-LBC44
Bien en copropriété. Nombre de lots : 266.
Honoraires d'agence de 6% à la charge de l'acquéreur
Barème des honoraires
Commerce à AVRILLE
Commerce à AVRILLE
Commerce à AVRILLE
Commerce à AVRILLE
Commerce à AVRILLE
Commerce à AVRILLE
Commerce à AVRILLE
Commerce à AVRILLE
Commerce à AVRILLE
Géorisques

Les informations sur les risques auxquels ce bien est exposé sont disponibles sur le site Géorisques : www.georisques.gouv.fr

Ce site est protégé par hCaptcha Politique de confidentialité et Conditions d’utilisation s’appliquent.