Bénéficiez des services de nos partenaires locaux soigneusement sélectionnés
pour vous accompagner dans votre parcours d'achat immobilier

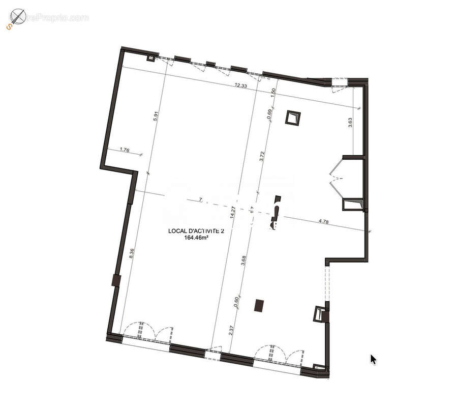
Commerce 164 m² à Ferney-Voltaire

— Ferney-Voltaire 01210 —
410 000 €
164 m²

Nos partenaires locaux
Programme GARDEN PARK – Éco-quartier d'envergure aux portes de Genève.

Au sein du programme neuf Garden Park, éco-quartier structurant idéalement situé à Ferney-Voltaire, nous proposons plusieurs locaux commerciaux à la vente, au coeur d'un environnement moderne, durable et en pleine expansion.

Ces surfaces s'intègrent dans un ensemble immobilier mixte (logements, services, activités), offrant une visibilité qualitative et un flux naturel généré par le quartier.

Les locaux sont livrés et disponibles immédiatement, permettant une mise en exploitation rapide ou une mise en location sans délai.

Caractéristiques :
- Locaux livrés brut de béton
- Menuiseries extérieures / vitrines déjà posées
- Fluides en attente
- Belle visibilité commerciale (linéaire vitrine)
- Accès de plain-pied selon les lots
- Aménagements libres et adaptables

À l'image des autres opérations comparables du secteur, les locaux bénéficient d'un beau linéaire vitré et d'une excellente luminosité, avec un positionnement en pied d'immeuble favorisant l'attractivité commerciale

Garden Park s'inscrit dans une logique d'aménagement durable et structuré :
- Éco-quartier de plus de 4,5 hectares
- Environ 45 % d'espaces verts
- Mixité d'usages (habitat, services, activités)
- Présence d'équipements (conciergerie, mobilités douces, etc.)
- Cadre de travail attractif pour salariés et clientèle

Cet environnement contribue directement à la valorisation des actifs et à la pérennité locative.

Une localisation stratégique premium :
- À proximité immédiate de Genève
- Accès rapide à l'aéroport international
- À proximité du CERN et des organisations internationales
- Secteur en forte croissance démographique et économique
- Bassin de clientèle locale et transfrontalière à fort pouvoir d'achat

Le secteur bénéficie d'un flux constant et d'une dynamique commerciale portée par la densité résidentielle et la proximité suisse.

Lots disponibles :
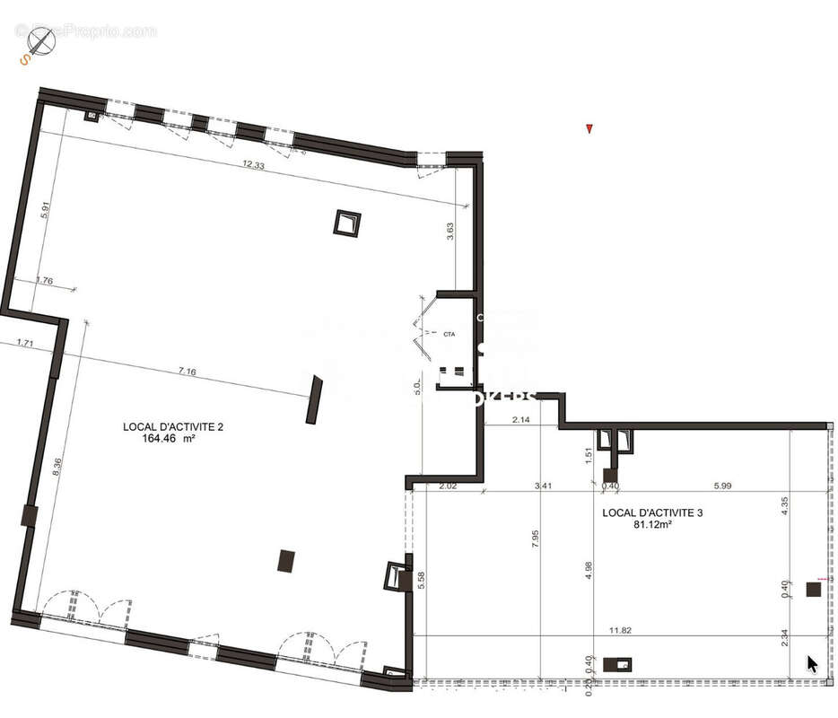
- Lot n°2 - Surface : 164,46 m² - Prix de vente : 410 000 € HT
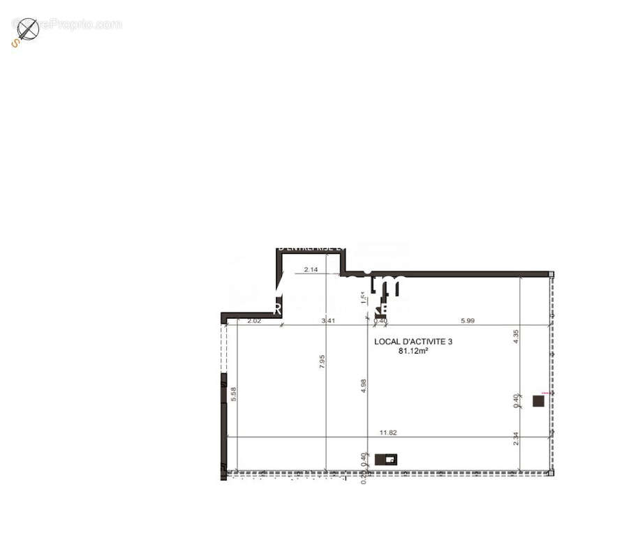
- Lot n°3 - Surface : 81,12 m² - Prix de vente : 226 800 € HT
- Lot n°2 + 3 - Surface : 245,58 m² - Prix de vente : 636 800 € HT

Honoraires Avinim Réseau Brokers : nous consulter.

Contact : [Coordonnées masquées] - [Coordonnées masquées].

AVINIM RESEAU BROKERS est le premier cabinet immobilier d'entreprise structuré en réseau de mandataires. Nous maillons avec notre équipe de 80 Brokers une grande partie du territoire national pour accompagner nos entreprises clientes dans leurs recherches de commerces, bureaux, locaux d'activités, immeubles et fonciers.
www.reseau-brokers.com

Honoraires à la charge du vendeur. DPE en cours. Les informations sur les risques auxquels ce bien est exposé sont disponibles sur le site Géorisques : georisques.gouv.fr.

Votre conseiller AVINIM RESEAU BROKERS : Nicolas PARROCHE
Agent commercial (Entreprise individuelle)
RSAC 478800212
RCP 7953190/S17093745
Voir plus

Référence: VP51379-BROKERS
Honoraires à la charge du vendeur.
Barème des honoraires
Commerce à FERNEY-VOLTAIRE
Commerce à FERNEY-VOLTAIRE
Commerce à FERNEY-VOLTAIRE
Commerce à FERNEY-VOLTAIRE
Géorisques

Les informations sur les risques auxquels ce bien est exposé sont disponibles sur le site Géorisques : www.georisques.gouv.fr

Ce site est protégé par hCaptcha Politique de confidentialité et Conditions d’utilisation s’appliquent.