Bénéficiez des services de nos partenaires locaux soigneusement sélectionnés
pour vous accompagner dans votre parcours d'achat immobilier

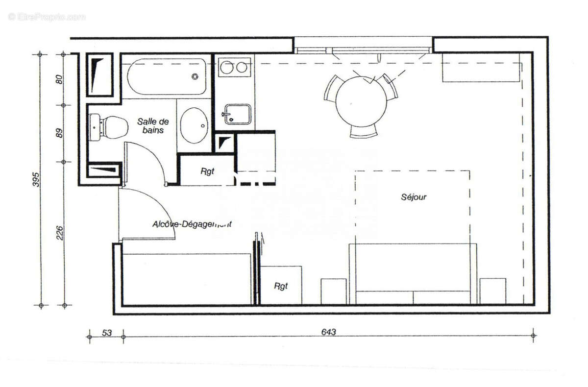
Appartement 24 m² à Deauville

— Deauville 14800 —
97 870 €
24 m²
1 pièce

Nos partenaires locaux
Nous vous proposons un bien immobilier unique idéal pour un investissement en Loueur Meublé Non Professionnel (LMNP) sous bail commercial. Ce type de placement offre de nombreux avantages fiscaux et un revenu locatif sécurisé.


« Aucune possibilité d'acquisition en résidence principale ou secondaire »

Caractéristiques du Bien :
Type de Bien : T1 meublé
Surface : 24,20 m²
Etat Général : Bon Etat
Gestionnaire : PIERRE & VACANCES

Informations Financières :
Prix de Vente : 97 870 €
Loyer Annuel Garanti : 4 980 € HT
Rendement Locatif Brut : 5,09 %
Charges de copropriétés mensuelles : 27,92 €
Taxe foncière : 234 €
Bail commercial jusqu'au 30/09/2035

Avantages de l'Investissement LMNP :
Revenu locatif sécurisé : Le bien est loué sous bail commercial avec un loyer garanti.
Régime fiscal attractif : Amortissement du bien, déduction des charges, et réduction de la base imposable.

Gestion simplifiée : Le bail commercial inclut la gestion locative, ce qui réduit les contraintes pour l'investisseur.

Pour plus d'informations ou pour organiser une visite, n'hésitez pas à nous contacter :

Téléphone : [Coordonnées masquées]
Adresse de l'agence : 21-23, 21 Rue du Maréchal Leclerc, 85100 Les Sables-d'Olonne
Investissez en toute sérénité avec ce bien sous le statut LMNP et bénéficiez d'un rendement locatif attractif et sécurisé. Ne manquez pas cette opportunité exceptionnelle !
Les informations sur les risques auxquels ce bien est exposé sont disponibles sur le site Géorisques : www.georisques.gouv.fr
PHOTOS NON CONTRACTUELLES

Dans une copropriété de 100 lots. Aucune procédure n'est en cours. Classe énergie E, Classe climat E Montant moyen estimé des dépenses annuelles d'énergie pour un usage standard, établi à partir des prix de l'énergie de l'année 2026 : entre 400.00 et 600.00 €. Les informations sur les risques auxquels ce bien est exposé sont disponibles sur le site Géorisques : georisques.gouv.fr.
Voir plus

Référence: VA11419-MAISON-BLANCHE
Bien en copropriété. Nombre de lots : 100.
Honoraires à la charge de l'acquéreur.
Barème des honoraires
DPE
A
B
C
D
E
F
G
GES
A
B
C
D
E
F
G
Appartement à DEAUVILLE
Appartement à DEAUVILLE
Appartement à DEAUVILLE
Appartement à DEAUVILLE
Appartement à DEAUVILLE
Appartement à DEAUVILLE
Appartement à DEAUVILLE
Appartement à DEAUVILLE
Géorisques

Les informations sur les risques auxquels ce bien est exposé sont disponibles sur le site Géorisques : www.georisques.gouv.fr

Ce site est protégé par hCaptcha Politique de confidentialité et Conditions d’utilisation s’appliquent.