Bénéficiez des services de nos partenaires locaux soigneusement sélectionnés
pour vous accompagner dans votre parcours d'achat immobilier

75011 oberkampf parmentier

— Paris-11e 75011 —
585 360 €
80 m²

Nos partenaires locaux
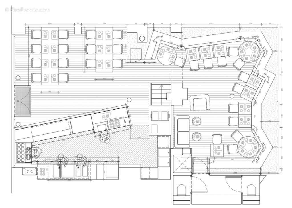
Restaurant de 80 m2 avec sous sol technique de 30 m2 .

Cuisine ouverte de plain pied au coeur de la salle , et une deuxième de 20 m2 en sous sol.

50 pl assises à optimiser , grand comptoir .

loyer 3150 € HT CC.

CA moyen sur les 3 dernières années : 600 000 ht.

Ouvert 7/7 .Pas de travaux à prévoir .

Cession 540 000 € net vendeur + 7% ht d honoraires de transaction.

Référence: 404279

Prêt immobilier

Vous souhaitez connaître votre capacité d’emprunt et trouver le meilleur crédit immobilier ?
Réaliser une simulation gratuite

Commerce à PARIS-11E
Commerce à PARIS-11E
Commerce à PARIS-11E
Ce site est protégé par reCAPTCHA la Politique de confidentialité et les Conditions d’utilisation de Google s’appliquent.
Obtenir un prêt immobilier au meilleur taux ?

En poursuivant votre navigation sans modifier vos paramètres, vous acceptez l'utilisation de cookies susceptibles de réaliser des statistiques de visite. Cliquez ici pour plus d'informations