1. Accueil
  2. > Terrains à vendre
  3. > Côte-d'Or (21)
  4. > Broindon

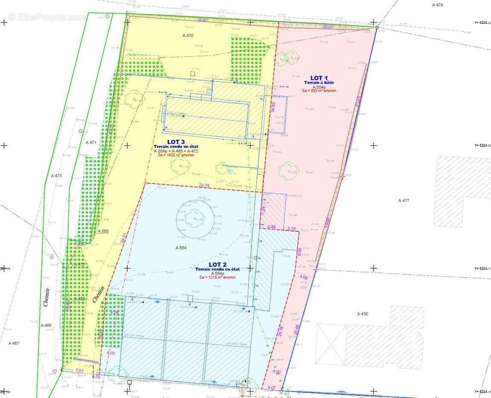
Terrains à vendre à BROINDON (21)

Obtenir un prêt immobilier au meilleur taux ?

En poursuivant votre navigation sans modifier vos paramètres, vous acceptez l'utilisation de cookies susceptibles de réaliser des statistiques de visite. Cliquez ici pour plus d'informations