Mes recherches
Mes favoris
Prix immobilier
Guide
Connexion
France
>
Charente-Maritime
>
La Rochelle
>
Cabinet CCE
Cabinet CCE - Agence à La Rochelle (17)
29 Avenue Jean Guiton, 17000 La Rochelle
Site web
05 46 29 02 56
48 annonces de l'agence Cabinet CCE
Cellule neuve 68 m2 Ile d'Oléron
SAINT-PIERRE-D'OLERON
224 385 €
Cellule commerciale 234 m2 VEFA
LA ROCHELLE
665 018 €
Boutique 33 m2 hyper centre
LA ROCHELLE
181 662 €
Boutique 35 m2
SAINT-MARTIN-DE-RE
93 728 €
Commerce 35 m2
SAINT-MARTIN-DE-RE
94 520 €
Sandiwicherie patisserie snack boissons sur place et vae
LA ROCHELLE
146 320 €
Commerce/bureaux à partir de 150 m2 - ZAC
LAGORD
2 500 €
Plateau de bureaux à partir de 50 m2
LA ROCHELLE
2 900 €
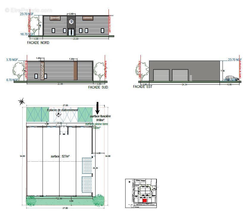
Batiment professionnel 527 m2
LA ROCHELLE
837 900 €
3
4
5
6