Mes recherches
Mes favoris
Prix immobilier
Guide
Connexion
France
>
Seine-Saint-Denis
>
Neuilly-Plaisance
>
Laforêt NEUILLY PLAISANCE
Laforêt NEUILLY PLAISANCE - Agence à Neuilly-Plaisance (93)
19 Boulevard Galliéni, 93360 Neuilly-Plaisance
Site web
01 56 49 19 90
40 annonces de l'agence Laforêt NEUILLY PLAISANCE
Maison T5 + garage - 96 m2 soit 250 m² env en tout sur 3 plateaux dalle béton.
NEUILLY-PLAISANCE
482 000 €
Appartement T4 + terrasses - 92.03 m2 - LE PERREUX SUR MARNE
LE PERREUX-SUR-MARNE
680 000 €
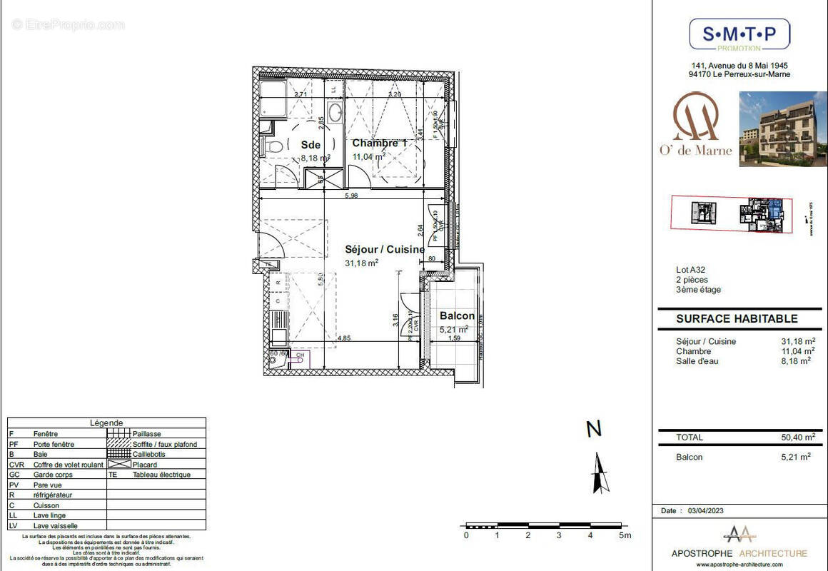
Appartement T2 + balcon - 50.40 m2 - LE PERREUX SUR MARNE
LE PERREUX-SUR-MARNE
355 000 €
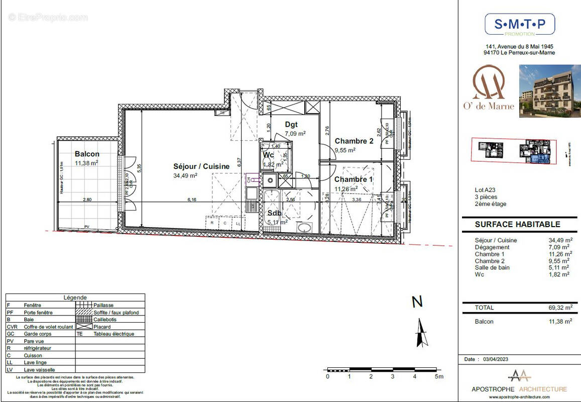
Appartement T3 + balcon - 69.32 m2 - LE PERREUX SUR MARNE
LE PERREUX-SUR-MARNE
498 000 €
3
4
5