Mes recherches
Mes favoris
Prix immobilier
Guide
Connexion
France
>
Val-d'Oise
>
Sannois
>
AID MARNEZ IMMOBILIER Sannois
AID MARNEZ IMMOBILIER Sannois - Agence à Sannois (95)
80 Boulevard Charles De Gaulle, 95110 Sannois
Site web
01 34 10 14 18
38 annonces de l'agence AID MARNEZ IMMOBILIER Sannois
Loft atypique sannois 154 m² habitables? prestations haut de gamme
SANNOIS
685 000 €
Maison Argenteuil hauts côteaux 6 pièce(s) 160 m2 avec piscine
ARGENTEUIL
585 000 €
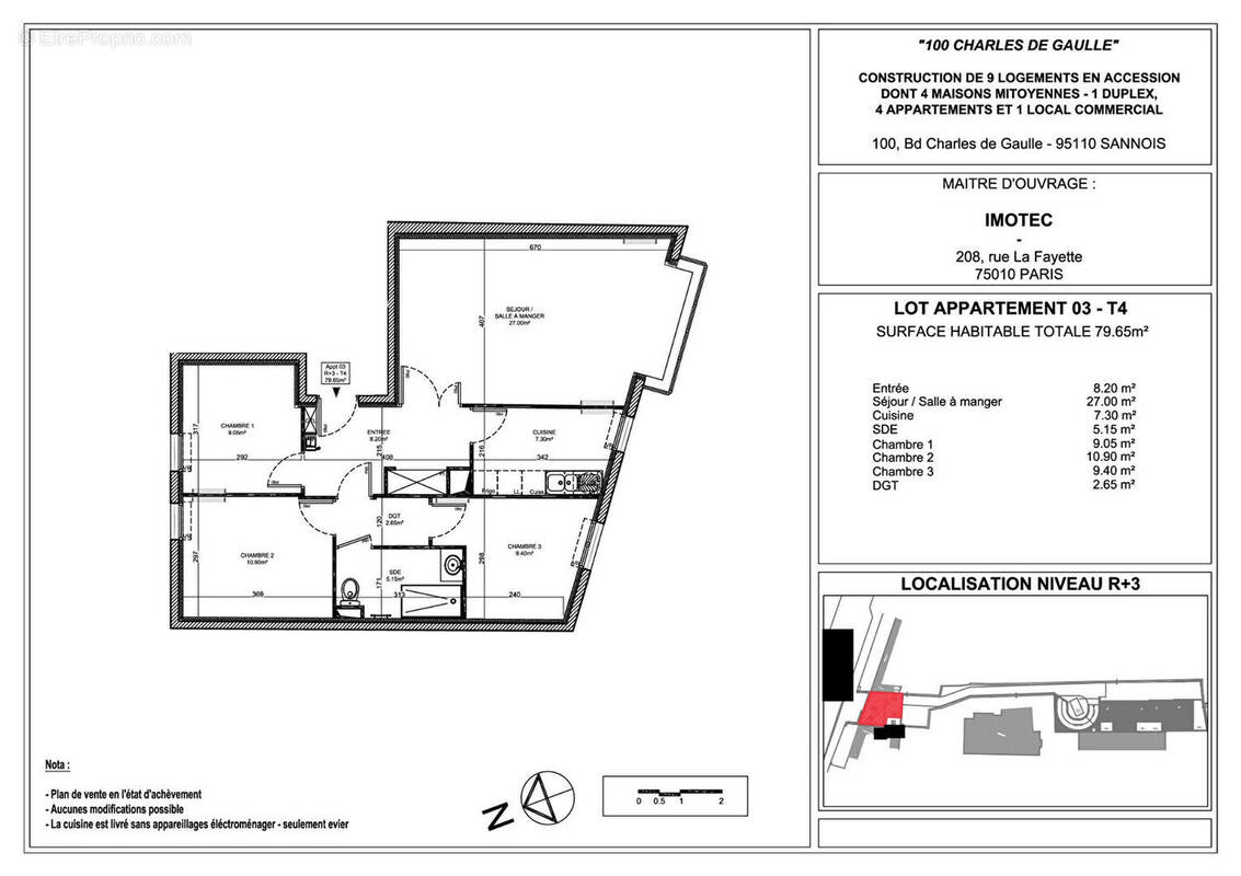
Appartement Sannois 4 pièce(s)
SANNOIS
334 000 €
Maison Sannois 6 pièce(s) 131.20 m2
SANNOIS
698 000 €
Maison Sannois 6 pièce(s) 131.20 m2
SANNOIS
698 000 €
Appartement Sannois 2 pièce(s) 45 m2
SANNOIS
190 000 €
Appartement Paris 4 pièce(s) 101 m2
PARIS-15E
1 150 000 €
Appartement Sannois 3 pièce(s) 61 m2 - VENDU LOUE
SANNOIS
170 000 €
Appartement Sannois 3 pièce(s)
SANNOIS
199 500 €
1
2
3
4