Bénéficiez des services de nos partenaires locaux soigneusement sélectionnés
pour vous accompagner dans votre parcours d'achat immobilier

Investissement lmnp - t2 meuble 32 m2 + parking - aix-en-provence centre-ville

— Aix-En-Provence 13100 —
164 900 €
32 m²
2 pièces
parking

Nos partenaires locaux
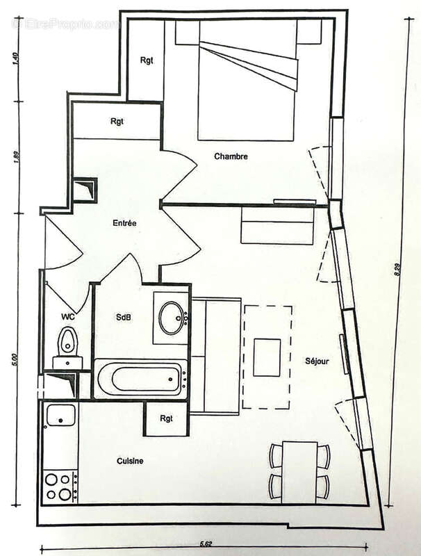
Aix-en-Provence Centre-Ville à 250 m de la Rotonde. Le Cabinet de Pierrefeu présente ce magnifique produit d'investissement locatif en LMNP qui permet de capitaliser sur un bien avec un rendement locatif satisfaisant et un faible effort financier.
En résidence de services ce T2 meublé de 32 M2 comprend un vaste séjour avec coin cuisine, une salle d'eau avec WC indépendant, une chambre et un parking en sous-sol.
Loyer garantie annuel : 8 K€ HT
Financement à 100 % hors frais de notaire : Annuité de 10,6 K€ assurance comprise
Effort financier annuel : 2,6 K€ soit 220 € mensuel (à affiner selon votre apport personnel) et la taxe foncière de 750 €.
Avec 15 K€ d'apport personnel et le paiement des frais de notaire, l'effort financier sera de 146 € mensuel pour un T2 en centre-ville à deux pas de la rotonde qui ne perdra pas de valeur dans le temps.
Contact : [Coordonnées masquées]
Voir plus

Barème des honoraires

Prêt immobilier

Vous souhaitez connaître votre capacité d’emprunt et trouver le meilleur crédit immobilier ?
Réaliser une simulation gratuite

Appartement à AIX-EN-PROVENCE
Appartement à AIX-EN-PROVENCE
Appartement à AIX-EN-PROVENCE
Appartement à AIX-EN-PROVENCE
Appartement à AIX-EN-PROVENCE
Appartement à AIX-EN-PROVENCE
Appartement à AIX-EN-PROVENCE
Ce site est protégé par reCAPTCHA la Politique de confidentialité et les Conditions d’utilisation de Google s’appliquent.
Obtenir un prêt immobilier au meilleur taux ?

En poursuivant votre navigation sans modifier vos paramètres, vous acceptez l'utilisation de cookies susceptibles de réaliser des statistiques de visite. Cliquez ici pour plus d'informations