Bénéficiez des services de nos partenaires locaux soigneusement sélectionnés
pour vous accompagner dans votre parcours d'achat immobilier

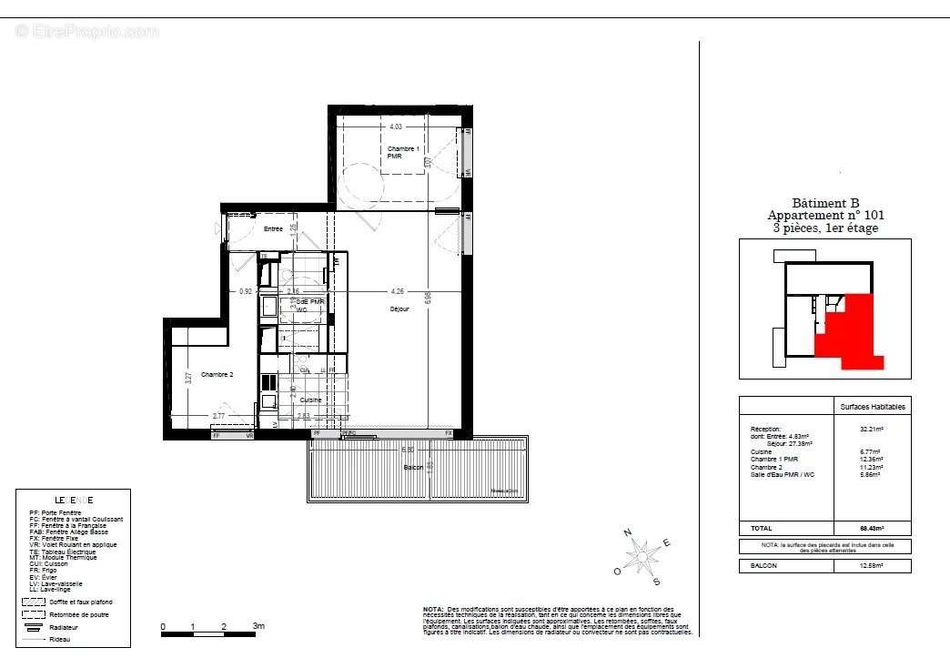
Appartement 3 pièces 68,43 m2 avec balcon et pkg – bordeaux bastide.

— Bordeaux 33100 —
319 000 €
68 m²
3 pièces
parkingbalcon/terrasseascenseuraccès handicapé

Nos partenaires locaux
Appartement situé au 1er étage, à Bordeaux Bastide, à proximité immédiate des quais et du pont Chaban Delmas.
Cet Appartement de 68,43 m², bien agencé et aux nouvelles normes, est composé d’une entrée desservant un séjour, une cuisine semi-séparée et deux chambres (dont un accès PMR) et une salle d’eau avec WC. Un large balcon de 12,58 m², exposé Sud-Ouest, complète ce bien.
– Place de parking couverte.
– Menuiserie Aluminium double vitrage.
– Immeuble équipée Fibre.
– Résidence composée de 3 Bâtiments, 59 lots.
– Pour investisseurs ou pour achat RP.

Contact : Amaury de Saint Rémy au [Coordonnées masquées].
Voir plus

Référence: Pont Chaban

Prêt immobilier

Vous souhaitez connaître votre capacité d’emprunt et trouver le meilleur crédit immobilier ?
Réaliser une simulation gratuite

Appartement à BORDEAUX
Appartement à BORDEAUX
Appartement à BORDEAUX
Appartement à BORDEAUX
Appartement à BORDEAUX
Ce site est protégé par reCAPTCHA la Politique de confidentialité et les Conditions d’utilisation de Google s’appliquent.
Obtenir un prêt immobilier au meilleur taux ?

En poursuivant votre navigation sans modifier vos paramètres, vous acceptez l'utilisation de cookies susceptibles de réaliser des statistiques de visite. Cliquez ici pour plus d'informations