Vue sans pareil

— Pertuis 84120 —
299 000 €
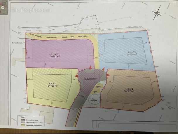
763 m²

Quand les photos parlent d'elles même..., ajoutez à cela sa situation géographique, le calme, la liberté de choisir le constructeur. Vous pouvez édifier une villa de plain pied ou à étage, les travaux de viabilités seront terminés en Avril. possibilité de construire 150 m² de surface de plancher. Nous sommes à votre disposition pour vous proposer les deux derniers lots de ce lotissement.

Référence: 259
Honoraires à la charge du vendeur.
Barème des honoraires

Prêt immobilier

Vous souhaitez connaître votre capacité d’emprunt et trouver le meilleur crédit immobilier ?
Réaliser une simulation gratuite

Terrain à PERTUIS
Terrain à PERTUIS
Terrain à PERTUIS
Ce site est protégé par reCAPTCHA la Politique de confidentialité et les Conditions d’utilisation de Google s’appliquent.
Obtenir un prêt immobilier au meilleur taux ?

En poursuivant votre navigation sans modifier vos paramètres, vous acceptez l'utilisation de cookies susceptibles de réaliser des statistiques de visite. Cliquez ici pour plus d'informations