Bénéficiez des services de nos partenaires locaux soigneusement sélectionnés
pour vous accompagner dans votre parcours d'achat immobilier

Vente appartement montpellier(34000) 529 700ᅵ

— Montpellier 34000 —
529 700 €
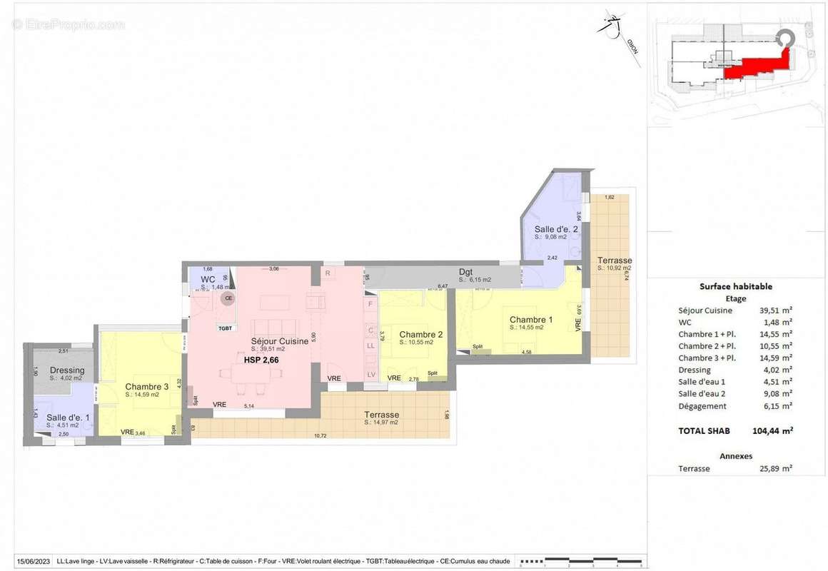
104 m²
4 pièces

Nos partenaires locaux
Montpellier lepic beau t4 avec terrasse montpellier lepic, au sein d'une maison et son moulin du xvii ème siècle entièrement réhabilités en 2023, beau t4 au premier étage de 104.44m² avec une terrasse de 25.89 m². appartement lumineux avec un séjour/cuisine avec accès terrasse. trois chambres. deux salle d'eaux et wc séparés. deux places de parking privatives. prestations hauts de gamme et possibilité de choix de matériaux. proche de toutes les commodités, commerces, centre-ville, groupes scolaires et pôle médical, future ligne de tram 5. a propos de la copropriété : nombre de lots : 8 votre contact pour ce bien : lauriane ayora [Coordonnées masquées]
Voir plus

Référence: 82325647

Prêt immobilier

Vous souhaitez connaître votre capacité d’emprunt et trouver le meilleur crédit immobilier ?
Réaliser une simulation gratuite

Appartement à MONTPELLIER
Appartement à MONTPELLIER
Appartement à MONTPELLIER
Appartement à MONTPELLIER
Ce site est protégé par reCAPTCHA la Politique de confidentialité et les Conditions d’utilisation de Google s’appliquent.
Obtenir un prêt immobilier au meilleur taux ?

En poursuivant votre navigation sans modifier vos paramètres, vous acceptez l'utilisation de cookies susceptibles de réaliser des statistiques de visite. Cliquez ici pour plus d'informations