Bénéficiez des services de nos partenaires locaux soigneusement sélectionnés
pour vous accompagner dans votre parcours d'achat immobilier

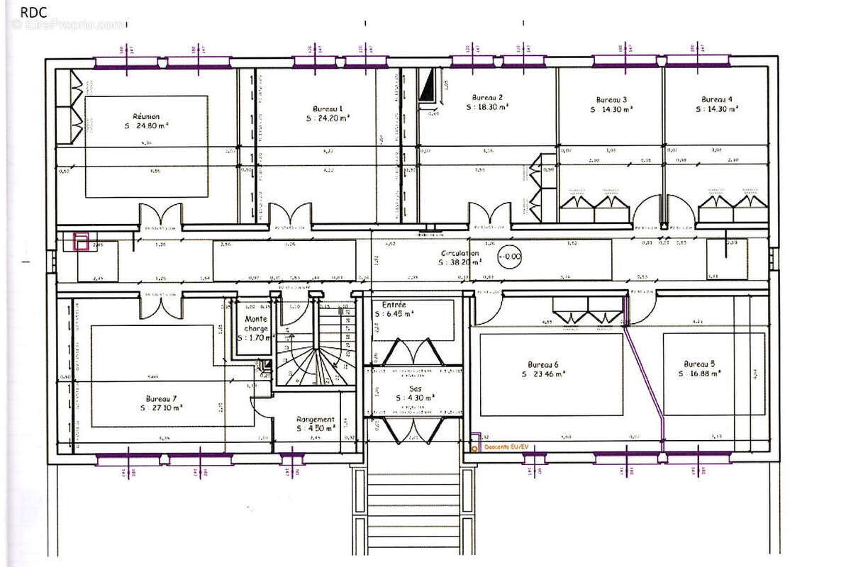
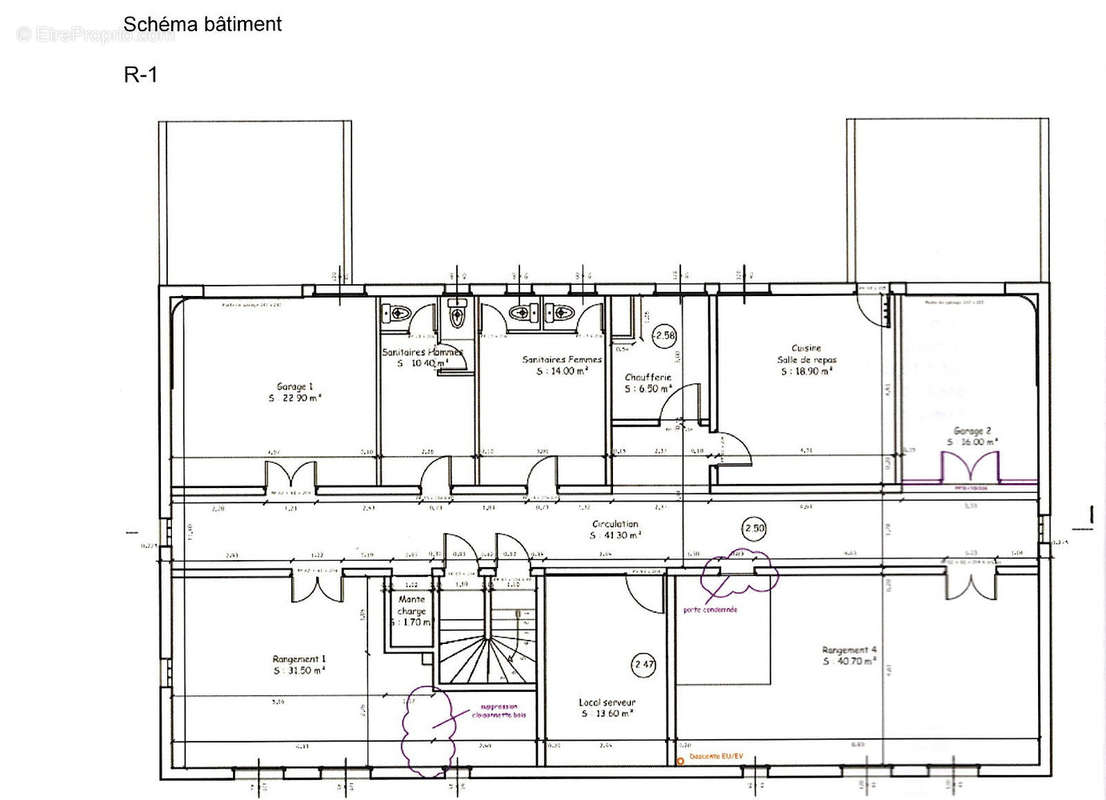
Batiment de 600m2 à usage tertiaire

— Dange-Saint-Romain 86220 —
310 000 €
600 m²

Nos partenaires locaux
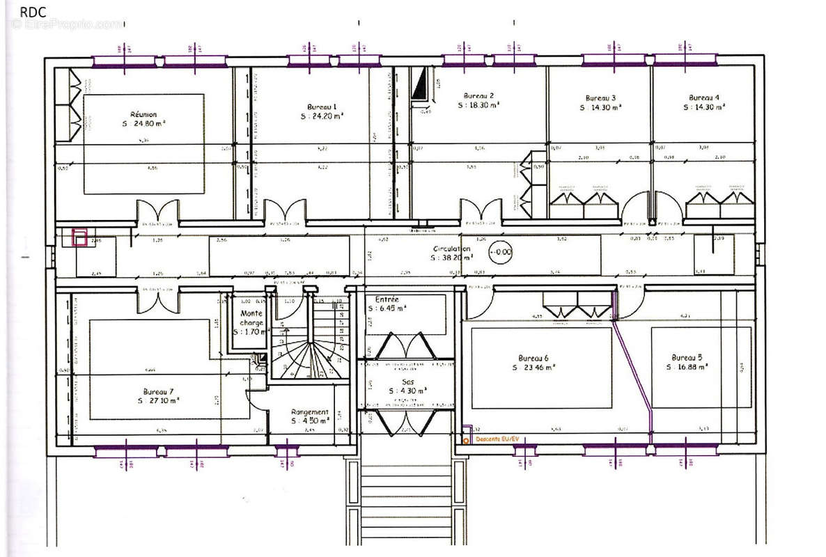
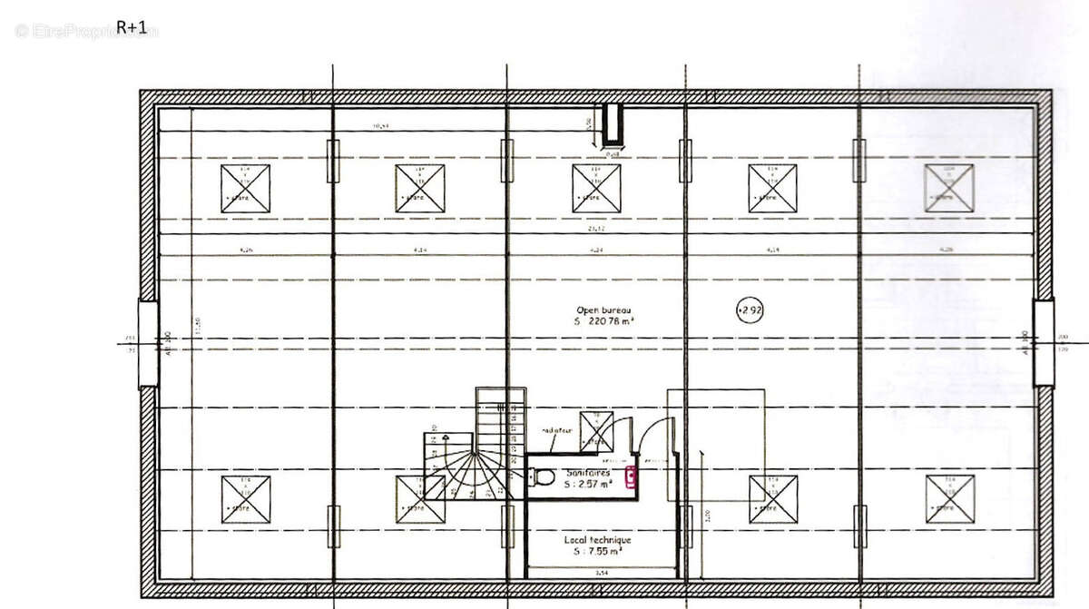
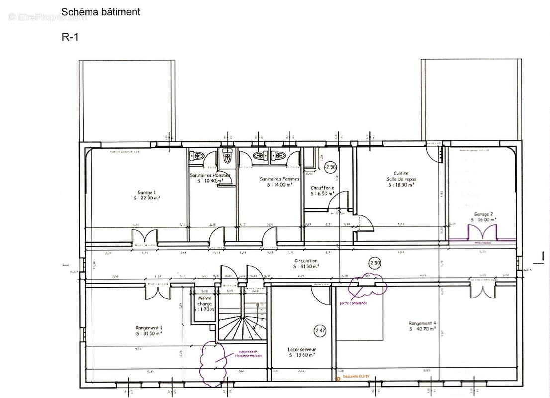
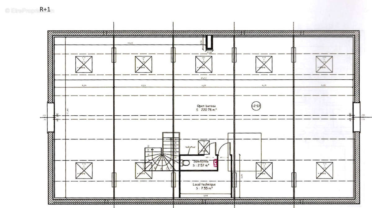
DANGE ST ROMAIN - 5 mn SORTIE autoroute A10 au NORD de CHATELLERAULT - Sur TERRAIN clos de 3000m2 BATIMENT de 600 m2 à usage BUREAUX comprenant : 7 espaces bureaux - salle de réunion - Open bureau de 220m2 - espaces archivages 72m2 - sanitaires - salle de repas/cuisine - GARAGES.

Référence: 25471
Honoraires d'agence de 3.68% à la charge de l'acquéreur
Barème des honoraires

Prêt immobilier

Vous souhaitez connaître votre capacité d’emprunt et trouver le meilleur crédit immobilier ?
Réaliser une simulation gratuite

Commerce à DANGE-SAINT-ROMAIN
Commerce à DANGE-SAINT-ROMAIN
Commerce à DANGE-SAINT-ROMAIN
Commerce à DANGE-SAINT-ROMAIN
Commerce à DANGE-SAINT-ROMAIN
Commerce à DANGE-SAINT-ROMAIN
Commerce à DANGE-SAINT-ROMAIN
Ce site est protégé par reCAPTCHA la Politique de confidentialité et les Conditions d’utilisation de Google s’appliquent.
Obtenir un prêt immobilier au meilleur taux ?

En poursuivant votre navigation sans modifier vos paramètres, vous acceptez l'utilisation de cookies susceptibles de réaliser des statistiques de visite. Cliquez ici pour plus d'informations