Bénéficiez des services de nos partenaires locaux soigneusement sélectionnés
pour vous accompagner dans votre parcours d'achat immobilier

Superbe villa d'architecte 337m2 , cap d'agde

— Agde 34300 —
1 407 000 €
327 m² / 1 034 m²
8 pièces
parkingbalcon/terrasse

Nos partenaires locaux
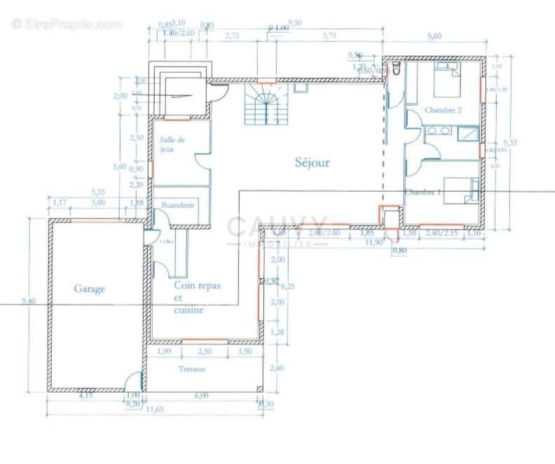
CAUVY IMMOBILIER vous propose dans sa gamme "prestige", cette superbe villa d'architecte au CAP D'AGDE. Sur une parcelle de plus de 1000 m2, à 300 mètres de la plage, ce projet immobilier de 337 m2 habitables, sera livré en Juillet 2023, hors d'eau hors d'air, vous permettant de réaliser le second oeuvre à votre goût! Opportunité exceptionnelle sur le secteur!! Dossier sur demande (photo non contractuelle) CAUVY IMMOBILIER CLAUDE CAUVY Agent Immobilier Portable : [Coordonnées masquées] RSAC: 432 404 366
Voir plus

Référence: 214
Honoraires à la charge du vendeur.
Barème des honoraires

Prêt immobilier

Vous souhaitez connaître votre capacité d’emprunt et trouver le meilleur crédit immobilier ?
Réaliser une simulation gratuite

Maison à AGDE
Maison à AGDE
Maison à AGDE
Maison à AGDE
Ce site est protégé par reCAPTCHA la Politique de confidentialité et les Conditions d’utilisation de Google s’appliquent.
Obtenir un prêt immobilier au meilleur taux ?

En poursuivant votre navigation sans modifier vos paramètres, vous acceptez l'utilisation de cookies susceptibles de réaliser des statistiques de visite. Cliquez ici pour plus d'informations