Bénéficiez des services de nos partenaires locaux soigneusement sélectionnés
pour vous accompagner dans votre parcours d'achat immobilier

Nice - port *frais réduits*

— Nice 06300 —
930 000 €
82 m²
3 pièces
parkingbalcon/terrasseascenseur

Nos partenaires locaux
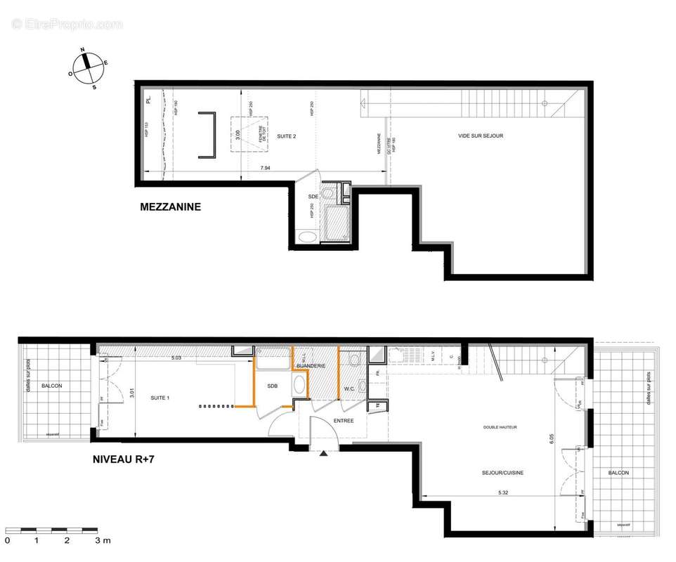
NICE DU PORT: Dans résidence neuve de standing, 3 pièces duplex de 83 m² situé en dernier étage. Au premier niveau: séjour avec cuisine donnant sur terrasse Est, à l'arrière chambre donnant sur terrasse, salle de douches, toilettes invités, buanderie. En mezzanine: chambre de maître avec dressing et salle de douches avec toilettes. Parking en option à partir de 41 000 €. FRAIS DE NOTAIRE RÉDUITS. Proche toutes commodités.
Nombre de lots : 24
Montant moyen annuel de la quote-part des charges courantes: en attente
A notre connaissance aucune procédure en cours menée sur le fondement des articles 29-1 A et 29-1 de la loi n° 65-557 du 10/07/1965 et de l'article L. 615-6 du CCH
Voir plus

Référence: 83032800
Barème des honoraires
DPE
A
B
C
D
E
F
G
GES
A
B
C
D
E
F
G
Appartement à NICE
Appartement à NICE
Appartement à NICE
Appartement à NICE
Appartement à NICE
Appartement à NICE
Appartement à NICE
Appartement à NICE
Géorisques

Les informations sur les risques auxquels ce bien est exposé sont disponibles sur le site Géorisques : www.georisques.gouv.fr

Ce site est protégé par hCaptcha Politique de confidentialité et Conditions d’utilisation s’appliquent.

En poursuivant votre navigation sans modifier vos paramètres, vous acceptez l'utilisation de cookies susceptibles de réaliser des statistiques de visite. Cliquez ici pour plus d'informations