Pas de maison à Seichebrieres pour le moment. Découvrez dès maintenant les maisons dans le département Loiret.
Bénéficiez des services de nos partenaires locaux soigneusement sélectionnés
pour vous accompagner dans votre parcours d'achat immobilier

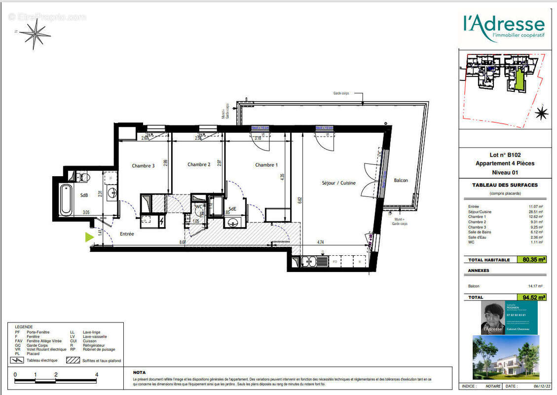
Appartement 80m²+ balcon sud

— Orleans 45000 —
335 000 €
80 m²
4 pièces
ascenseur

Nos partenaires locaux
Au coeur d'un quartier résidentiel très prisé qui a préservé ses charmes, ses venelles, ses parcs et ses jardins pour offrir un coin de campagne en ville. A moins de 10 min* en voiture du centre historique d'Orléans, avec ses 26 appartements, la résidence est résolument confidentielle. Elle vous propose des T3 et T4 DE 62M² à93M² à partir de 270 000 euros Les logements bénéficient de pièces de vie particulièrement claires et chaleureuses tout au long de l'année. L'ensemble des appartements profitent de belles expositions, pour la plupart plein sud, et d'une luminosité naturelle abondante permettant à chacun d'en profiter, dès l'arrivée des premiers rayons du soleil. Les chambres et les suites parentales, avec salle d'eau, assurent à chaque membre de la famille un confort reposant. Pour une qualité de vie optimale, tous les résidents disposent d'un espace extérieur dans le prolongement de leur séjour-cuisine. Les jardins privatifs, balcons et terrasses s'ouvrent sur les vues verdoyantes offertes par le coeur d'îlot généreusement paysager. Cette résidence est proche des transports: TRAM, Bus, Ecoles, Commerces Disponible 3 TR 2024 PRIX PROMOTEUR Frais de notaire 2.5% Pour tous renseignements contactez Isabelle Peignien au [Coordonnées masquées] Pour trouver votre solution immobilière en Résidence principale ou secondaire, Défiscalisation, LMNP, Location, Gestion immobilière. Les informations sur les risques auxquels ce bien est exposé sont disponibles sur le site Géorisques : www.georisques.gouv.fr. Copropriété de 56 lots - dont 26 lots habitation. Isabelle PEIGNIEN (EI) Agent Commercial - Numéro RSAC : 2025AC00003 - ORLEANS.
Voir plus

Référence: 12904
Bien en copropriété. Nombre de lots : 56. Procédure en cours : Procédure en cours.
Honoraires à la charge du vendeur.
Barème des honoraires

Prêt immobilier

Vous souhaitez connaître votre capacité d’emprunt et trouver le meilleur crédit immobilier ?
Réaliser une simulation gratuite

Appartement à ORLEANS
Appartement à ORLEANS
Appartement à ORLEANS
Appartement à ORLEANS
Appartement à ORLEANS
Appartement à ORLEANS
Appartement à ORLEANS
Appartement à ORLEANS
Appartement à ORLEANS
Ce site est protégé par reCAPTCHA la Politique de confidentialité et les Conditions d’utilisation de Google s’appliquent.
Obtenir un prêt immobilier au meilleur taux ?

En poursuivant votre navigation sans modifier vos paramètres, vous acceptez l'utilisation de cookies susceptibles de réaliser des statistiques de visite. Cliquez ici pour plus d'informations