Bénéficiez des services de nos partenaires locaux soigneusement sélectionnés
pour vous accompagner dans votre parcours d'achat immobilier

Terrain petit mars 500 m2

— Petit-Mars 44390 —
88 000 €
500 m²
jardin

Nos partenaires locaux
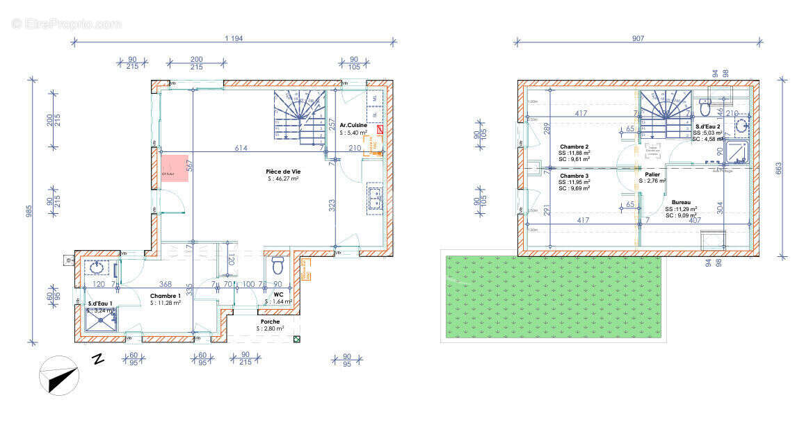
"Votre Maison sur mesure dans un cadre paisible entre Petit Mars et Nort sur Erdre" Vous rêvez de construire votre propre cocon dans un environnement serein ? Ne cherchez plus ! Un terrain de 500m², niché au coeur d'un hameau tranquille, vous attend pour concrétiser votre projet de vie. Permis validé pour une maison de 100m² conforme aux normes RT 2012. (Projet Non libre de constructeur) Maison de 100m² comprenant trois chambres, bureau et pièce de vie de 46m² conforme aux normes énergétiques actuelles pour une meilleure efficacité Projet adaptable à vos besoins et goûts Projet de construction proposé à 203 000 euros hors cuisines, peintures, sol des chambres et assainissement Options de personnalisation disponibles pour créer votre espace de vie idéal N'attendez plus pour réaliser votre rêve ! Contactez-nous dès aujourd'hui pour découvrir comment faire de ce projet de construction votre futur foyer. Réf : 32994 Honoraires à charge vendeur. Les informations sur les risques auxquels ce bien est exposé sont disponibles sur le site Géorisques : www.georisques.gouv.fr
Voir plus

Honoraires à la charge du vendeur.
Barème des honoraires

Prêt immobilier

Vous souhaitez connaître votre capacité d’emprunt et trouver le meilleur crédit immobilier ?
Réaliser une simulation gratuite

Terrain à PETIT-MARS
Terrain à PETIT-MARS
Terrain à PETIT-MARS
Terrain à PETIT-MARS
Terrain à PETIT-MARS
Terrain à PETIT-MARS
Ce site est protégé par reCAPTCHA la Politique de confidentialité et les Conditions d’utilisation de Google s’appliquent.
Obtenir un prêt immobilier au meilleur taux ?

En poursuivant votre navigation sans modifier vos paramètres, vous acceptez l'utilisation de cookies susceptibles de réaliser des statistiques de visite. Cliquez ici pour plus d'informations