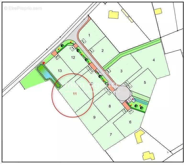
A frichemesnil 76690, terrain constructible 913m²

— Frichemesnil 76690 —
73 000 €
913 m²

Sur la commune de Frichemesnil 76690, ce grand terrain constructible de 913m² est à vendre.

Situé dans une impasse, ce terrain, libre de constructeur, est vendu borné et viabilisé.

Contactez nous afin d'avoir plus de renseignements et/ou organiser une visite.
Alexis HALLOT, agent commercial inscrit au RSAC de Rouen sous le N°902638774. Retrouvez tous nos biens sur google : Mon Agence : 2 agences sur le plateau Est de Rouen, à Boos 76520 et Bonsecours 76240, également à Buchy 76750, partenaires du groupement Happy Immo Rouen.
Voir plus

Référence: 83797953
Barème des honoraires

Prêt immobilier

Vous souhaitez connaître votre capacité d’emprunt et trouver le meilleur crédit immobilier ?
Réaliser une simulation gratuite

Terrain à FRICHEMESNIL
Terrain à FRICHEMESNIL
Terrain à FRICHEMESNIL
Terrain à FRICHEMESNIL
Ce site est protégé par reCAPTCHA la Politique de confidentialité et les Conditions d’utilisation de Google s’appliquent.
Obtenir un prêt immobilier au meilleur taux ?

En poursuivant votre navigation sans modifier vos paramètres, vous acceptez l'utilisation de cookies susceptibles de réaliser des statistiques de visite. Cliquez ici pour plus d'informations