Bénéficiez des services de nos partenaires locaux soigneusement sélectionnés
pour vous accompagner dans votre parcours d'achat immobilier

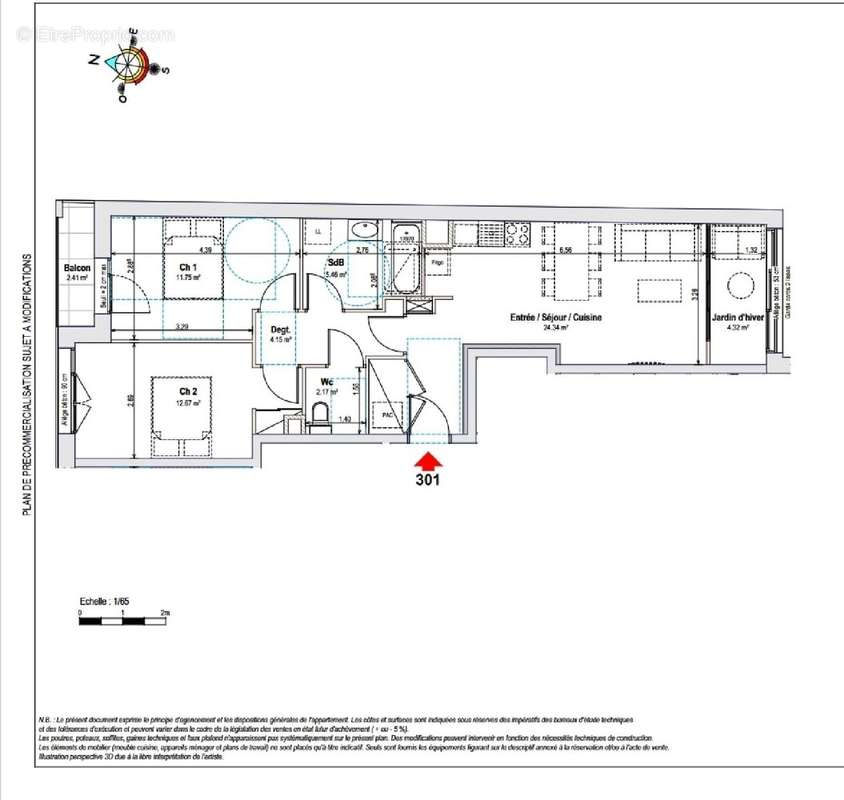
Appartement 65m² à annemasse

— Annemasse 74100 —
360 000 €
65 m²
3 pièces
ascenseur

Nos partenaires locaux
Dans petite copropriete intimiste situee composee de 11 logements, en rue pietonne aux abords du parc Montessuit, UN APPARTEMENT DE TYPE 3 Pieces TRAVERSANT, entree sur degagement, espace cuisine ouverte sur sejour avec jardin d' hiver expose SUD, salle de bains, WC, separes, 2 chambres dont une avec balcon., SANS VIS-A-VIS. Cave et local velo., ENVIRONNEMENT VERDOYANT., Secteur calme et recherche., La production d' eau chaude est assuree par une pompe a chaleur reversible., Le chauffage est par plancher hydraulique., Fenetre double vitrage gaz Argon., Occultations par volets roulants electriques a lames aluminium., W.C suspendus, faience toute hauteur, seches- serviettes., RE2020, LIVRAISON: 1T 2025., VEFA - FRAIS DE NOTAIRE REDUITS., , Agence immobiliere ideale pour acheter, vendre a Annemasse centre, proche Geneve, 74100, proche Annecy, FAR-immo, specialisee dans la vente de maisons a Annemasse, 74100, a Geneve, Annecy centre et proche Geneve diffuse quotidiennement des centaines d'...
Voir plus

Référence: VLT81

Prêt immobilier

Vous souhaitez connaître votre capacité d’emprunt et trouver le meilleur crédit immobilier ?
Réaliser une simulation gratuite

Appartement à ANNEMASSE
Appartement à ANNEMASSE
Appartement à ANNEMASSE
Appartement à ANNEMASSE
Appartement à ANNEMASSE
Appartement à ANNEMASSE
Appartement à ANNEMASSE
Ce site est protégé par reCAPTCHA la Politique de confidentialité et les Conditions d’utilisation de Google s’appliquent.
Obtenir un prêt immobilier au meilleur taux ?

En poursuivant votre navigation sans modifier vos paramètres, vous acceptez l'utilisation de cookies susceptibles de réaliser des statistiques de visite. Cliquez ici pour plus d'informations