Bénéficiez des services de nos partenaires locaux soigneusement sélectionnés
pour vous accompagner dans votre parcours d'achat immobilier

Dans le programme cogedim / air du temps

— Paris-13e 75013 —
900 000 €
77 m²
3 pièces
ascenseuraccès handicapé

Nos partenaires locaux
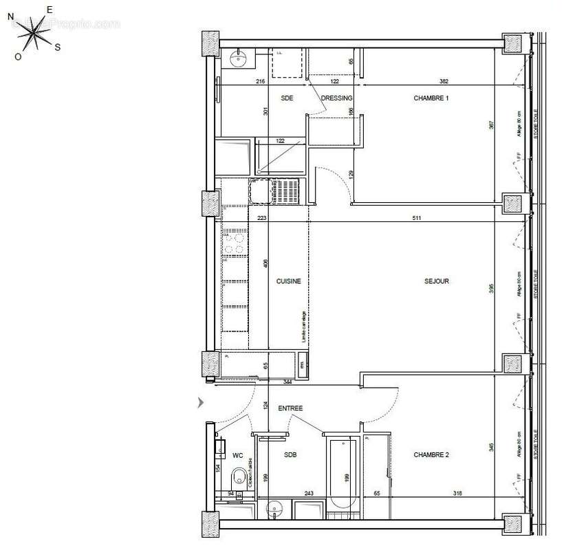
Nous avons la joie de proposer à la vente un lot dans le bâtiment Ponant, du programme AIR DU TEMPS de COGEDIM, livraison 2027.

Cet appartement neuf VEFA de 78m² au 4e étage est composé de:
Entrée , WC séparé, Salle de bain, deux chambres dont la parentale dispose d'un dressing et d'une salle de douche, un grand séjour avec cuisine US.

Les avantages du neuf sont la garantie de parfaite achèvement, d'une garantie décennale, d'une projection de DPE performante.
Voir plus

Référence: 83919725

Prêt immobilier

Vous souhaitez connaître votre capacité d’emprunt et trouver le meilleur crédit immobilier ?
Réaliser une simulation gratuite

Appartement à PARIS-13E
Appartement à PARIS-13E
Appartement à PARIS-13E
Ce site est protégé par reCAPTCHA la Politique de confidentialité et les Conditions d’utilisation de Google s’appliquent.
Obtenir un prêt immobilier au meilleur taux ?

En poursuivant votre navigation sans modifier vos paramètres, vous acceptez l'utilisation de cookies susceptibles de réaliser des statistiques de visite. Cliquez ici pour plus d'informations