Villa - pietrosella

— Grosseto-Prugna 20128 —
922 000 €
280 m² / 1 060 m²
6 pièces
parkingbalcon/terrassejardinpiscine

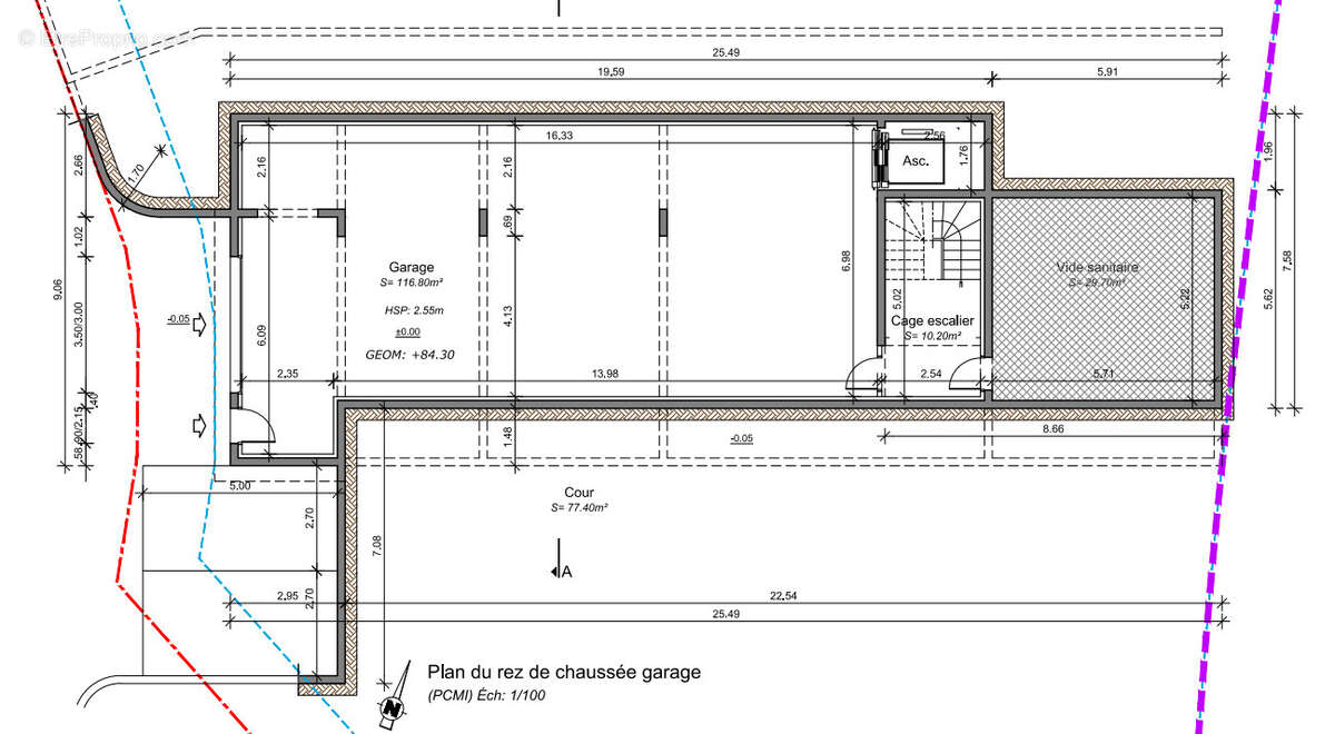
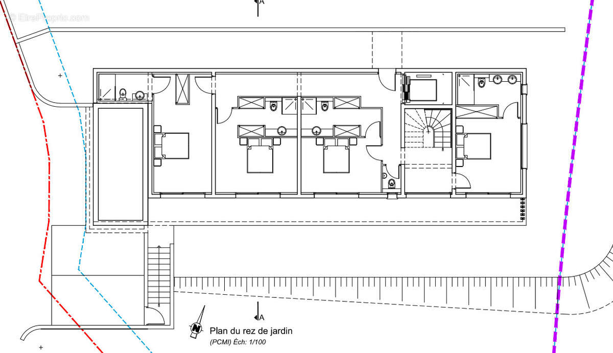
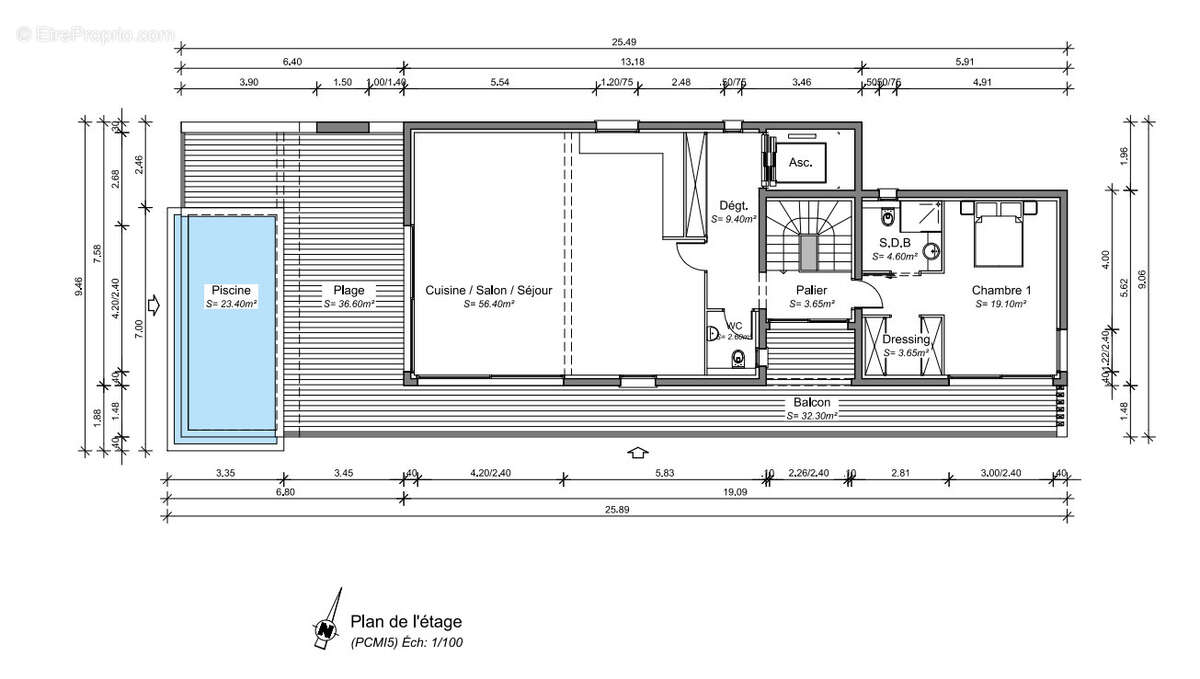
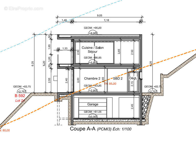
L'agence SCAGLIA Immo vous propose ce projet immobilier de standing sur la commune de Pietrosella dans un lotissement avec vue mer à 15 minutes du centre de Porticcio et de ces commerces. Cette réalisation vous est proposée hors eau hors air. Plans pour une villa de type 6 avec quatre chambres, salles de bain et dressing en rdc, séjour, cuisine et buanderie et une suite parentale en R+1. Un sous-sol à usage de garage pourra être aménager, en bureau voir d'un appartement supplémentaire.
Piscine à débordement. Baies coulissantes, volets électriques.
Belle vue dégagée sur le golfe d'Ajaccio.et la verte campagne. Belle exposition, construction en hauteur avec beaucoup de luminosité. Secteur trés calme.
Contact : Agence SCAGLIA Immo - 40, cours Lucien Bonaparte - 20000 Ajaccio. Les informations sur les risques auxquels ce bien est exposé sont disponibles sur le site Géorisques : www.georisques.gouv.fr
Voir plus

Référence: 1965
Bien en copropriété.
Honoraires à la charge du vendeur.
Barème des honoraires

Prêt immobilier

Vous souhaitez connaître votre capacité d’emprunt et trouver le meilleur crédit immobilier ?
Réaliser une simulation gratuite

Maison à GROSSETO-PRUGNA
Maison à GROSSETO-PRUGNA
Maison à GROSSETO-PRUGNA
Maison à GROSSETO-PRUGNA
Maison à GROSSETO-PRUGNA
Maison à GROSSETO-PRUGNA
Ce site est protégé par reCAPTCHA la Politique de confidentialité et les Conditions d’utilisation de Google s’appliquent.
Obtenir un prêt immobilier au meilleur taux ?

En poursuivant votre navigation sans modifier vos paramètres, vous acceptez l'utilisation de cookies susceptibles de réaliser des statistiques de visite. Cliquez ici pour plus d'informations