Bénéficiez des services de nos partenaires locaux soigneusement sélectionnés
pour vous accompagner dans votre parcours d'achat immobilier

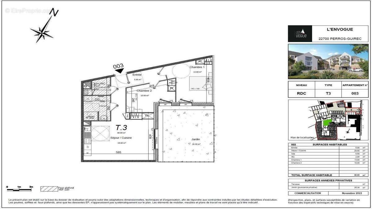
Lot n°003 - appartement t3 " résidence l'envogue " à perros-guirec

— Perros-Guirec 22700 —
330 000 €
66 m²
3 pièces
parkingjardinascenseur

Nos partenaires locaux
PLUS QUE QUELQUES OPPORTUNITES AVANT LIVRAISON !
Vos agences ORPI TREGORIMMO et ORPI LE VOT, vous proposent au sein d'une résidence neuve, cet appartement T3 se situe au rez-de-jardin et se compose d'une entrée, un séjour avec cuisine de 28,60 m², un couloir menant vers deux chambres, une salle d'eau et un w.c séparé. Un jardin exposé sud-est. Une place de parking privative au sein de la copropriété sécurisée.

La résidence l'Envogue vous propose un emplacement idéal à proximité du port de PERROS-GUIREC, restaurants, architecture élégante et contemporaine qui répondra à tous vos besoins : Jardin privatif en rez-de-jardin et terrasse pour les niveaux supérieurs, belles expositions, une place de parking ou garage et une cave. La construction, conforme à la RT 2012 offrira à ses occupants, confort en matière d'isolation thermique et acoustique. Contactez-nous sans plus attendre pour obtenir des renseignements sur notre programme par mail, téléphone ou dans nos agences.
Référence agence : 7283
Voir plus

Référence: 3WEB-B10-CA5
Honoraires à la charge du vendeur.

Prêt immobilier

Vous souhaitez connaître votre capacité d’emprunt et trouver le meilleur crédit immobilier ?
Réaliser une simulation gratuite

Appartement à PERROS-GUIREC
Appartement à PERROS-GUIREC
Appartement à PERROS-GUIREC
Appartement à PERROS-GUIREC
Appartement à PERROS-GUIREC
Appartement à PERROS-GUIREC
Ce site est protégé par reCAPTCHA la Politique de confidentialité et les Conditions d’utilisation de Google s’appliquent.
Obtenir un prêt immobilier au meilleur taux ?

En poursuivant votre navigation sans modifier vos paramètres, vous acceptez l'utilisation de cookies susceptibles de réaliser des statistiques de visite. Cliquez ici pour plus d'informations