Bénéficiez des services de nos partenaires locaux soigneusement sélectionnés
pour vous accompagner dans votre parcours d'achat immobilier

Appartement neuf 4 pièces - le plessis-trévise

— Le Plessis-Trevise 94420 —
379 000 €
82 m²
4 pièces
balcon/terrasse

Nos partenaires locaux
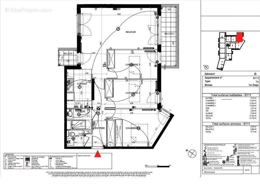
LE PLESSIS TREVISE - PROGRAMME NEUF, l'agence Immobilière Thomas Depresle vous propose dans une résidence neuve, cet appartement 4 pièces de 81.76m² composé d'une entrée avec placards , d'un séjour avec accès au balcon de 6.66m² mais aussi un second balcon de 2.05m², une cuisine séparée, 3 chambres dont une avec accès au balcon et une avec placards, une salle d'eau et un WC indépendant. Une place de parking en sous-sol. LIVRAISON prévue : 4ème trimestre 2024.

Nous pouvons vous proposer d'autres appartements 4 pièces également disponibles en investissement Pinel avec une place de parking par logement.
Contactez-nous pour plus de renseignements !
Voir plus

Référence: 83056566
Barème des honoraires

Prêt immobilier

Vous souhaitez connaître votre capacité d’emprunt et trouver le meilleur crédit immobilier ?
Réaliser une simulation gratuite

Appartement à LE PLESSIS-TREVISE
Appartement à LE PLESSIS-TREVISE
Ce site est protégé par reCAPTCHA la Politique de confidentialité et les Conditions d’utilisation de Google s’appliquent.
Obtenir un prêt immobilier au meilleur taux ?

En poursuivant votre navigation sans modifier vos paramètres, vous acceptez l'utilisation de cookies susceptibles de réaliser des statistiques de visite. Cliquez ici pour plus d'informations