Bénéficiez des services de nos partenaires locaux soigneusement sélectionnés
pour vous accompagner dans votre parcours d'achat immobilier

Appartement t4 avec grande terrasse

— Toulouse 31000 —
369 900 €
88 m²
4 pièces
parkingbalcon/terrasseascenseur

Nos partenaires locaux
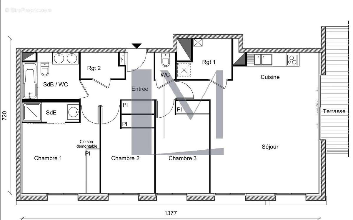
Notre cabinet vous propose à la vente ce grand appartement T4 d'une surface de 87,75 m2 avec terrasse, et trois places de stationnement.

A proximité du coeur de ville de Plaisance du Touch, cette résidence de trois étages bordée d'espaces verts s'intègre parfaitement à son environnement pavillonnaire.

L'appartement se compose d'un séjour lumineux avec cuisine de 33m2 offrant une large ouverture sur une terrasse de 20m2, deux chambres avec placards, une salle de bains avec WC, un WC indépendant et une suite parentale avec sa salle d'eau.
Deux espaces de rangement dans l'appartement viennent compléter ce bien.

Deux places de parking en sous-sol et une place de stationnement en aérien.

La Mairie, les commerces, services de proximité et plusieurs écoles se situent à moins de 500m de la résidence. Un arrêt de bus Linéo, tout proche de la résidence, permet de rejoindre rapidement Toulouse via la ligne A du métro.

Plus d'informations sur demande
Bien soumis au statut de la copropriété
Honoraires à la charge du vendeur

Visuels non contractuels
Voir plus

Référence: 6915344
Barème des honoraires

Prêt immobilier

Vous souhaitez connaître votre capacité d’emprunt et trouver le meilleur crédit immobilier ?
Réaliser une simulation gratuite

Appartement à TOULOUSE
Appartement à TOULOUSE
Appartement à TOULOUSE
Ce site est protégé par reCAPTCHA la Politique de confidentialité et les Conditions d’utilisation de Google s’appliquent.
Obtenir un prêt immobilier au meilleur taux ?

En poursuivant votre navigation sans modifier vos paramètres, vous acceptez l'utilisation de cookies susceptibles de réaliser des statistiques de visite. Cliquez ici pour plus d'informations