Maison pibrac 4 pièces 91 m2 + 220m² de jardin + garage

— Pibrac 31820 —
375 000 €
93 m²
4 pièces

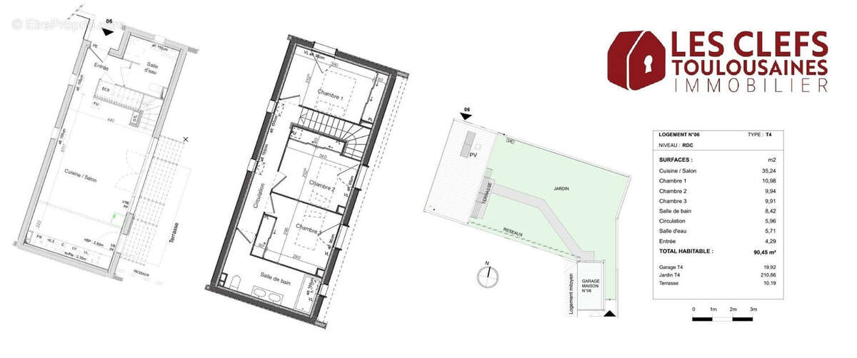
Maison 4 pièces de 93m² sur 2 niveaux avec terrasse en bois + grand jardin sans vis-à-vis de 220m² + garage de 20m², située dans une petite résidence intimiste au coeur d'un quartier vivant et recherché de PIBRAC. [ DISPO EGALEMENT : Maison T4 de 93m² de plain-pied avec 270m² de jardin ] -Spacieux séjour lumineux disposant de grandes baies vitrées ouvert sur cuisine, le tout le tout donnant sur 221m² de terrasse et jardin sans vis-à-vis. -3 grandes chambres à l'étage avec placards. -Salle de bain avec double vasque / sèche serviettes / WC. -Salle d'eau en RDC avec WC. -Grand garage de 20m² + place de parking. -Terrain piscinable. PRESTATIONS: Peinture lisse. Carrelage grès 45x45. Parquet stratifié dans les chambres. Placards aménagés. Salles de bains équipées. Sèche serviettes. Volets roulants électriques. Chauffage: pompe à chaleur air/air pour les villas. Panneaux solaires en autoconsommation. Jardins privatif engazonné et clôturé. Terrain piscinable. TRANSPORTS ET ACCES : N124 sortie n°7 à 1,4 km Gare de Pibrac à 3,6 km Bus Tisséo n°32, arrêt Stade à 1,9 km Métro, future 3ème ligne ? Toulouse Aerospace Express ' station Gare de Colomiers à 6 km Aéroport Toulouse-Blagnac à 14 km COMMERCES : Supermarché Super U et Drive à 750 m Station-service à 600 m Pharmacie de Bouconne à 2 km Centre médical en face de la résidence Centre médical Pibrac à 2,4 km Banque à 550 m ENSEIGNEMENT : Crèche Mélimélo à 3,5 km Groupe scolaire Maurice Fonvieille à 2 km Collège du Bois de la Barthe à 3,5 km Lycée général et technologique Nelson Mandela à 2 km Ecole et collège privé de La Salle à 2,9 km Maxime FONTENELLE LES CLEFS TOULOUSAINES
Voir plus

Barème des honoraires

Prêt immobilier

Vous souhaitez connaître votre capacité d’emprunt et trouver le meilleur crédit immobilier ?
Réaliser une simulation gratuite

Maison à PIBRAC
Maison à PIBRAC
Maison à PIBRAC
Maison à PIBRAC
Maison à PIBRAC
Maison à PIBRAC
Maison à PIBRAC
Maison à PIBRAC
Maison à PIBRAC
Maison à PIBRAC
Maison à PIBRAC
Maison à PIBRAC
Maison à PIBRAC
Maison à PIBRAC
Maison à PIBRAC
Maison à PIBRAC
Maison à PIBRAC
Ce site est protégé par reCAPTCHA la Politique de confidentialité et les Conditions d’utilisation de Google s’appliquent.
Obtenir un prêt immobilier au meilleur taux ?

En poursuivant votre navigation sans modifier vos paramètres, vous acceptez l'utilisation de cookies susceptibles de réaliser des statistiques de visite. Cliquez ici pour plus d'informations