Bénéficiez des services de nos partenaires locaux soigneusement sélectionnés
pour vous accompagner dans votre parcours d'achat immobilier

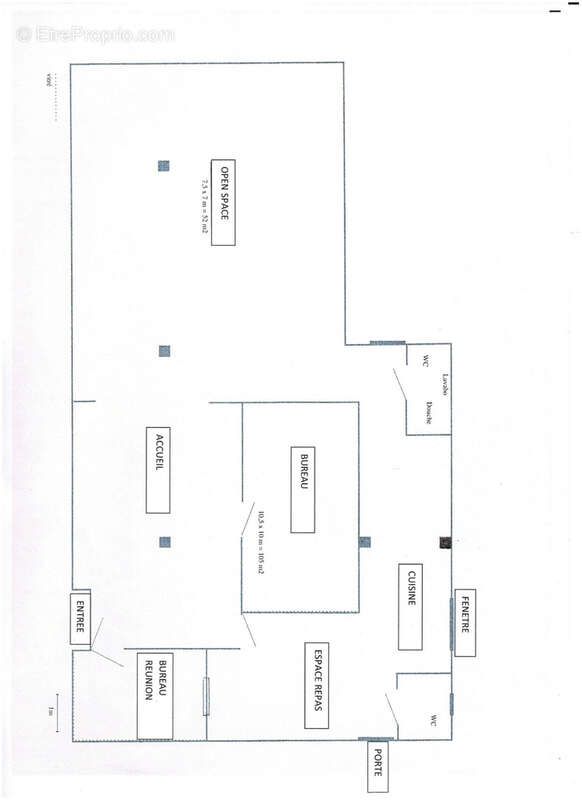
Bron local commercial ou bureau 145 m2

— Bron 69500 —
395 200 €
145 m²

Nos partenaires locaux
L'Agence AIPC2 vous propose les murs d'un local commercial d'une surface de 145 m2 de plein pied, possibilité et idéal pour bureaux ou profession médicale, divisible facilement, climatisation , chauffage collectif, grande vitrine , sanitaire douche et wc, cuisine, proche tramway et commerces, accès facile , parking commun + un parking dirigant ,

Référence: 214
Honoraires à la charge du vendeur.
Barème des honoraires
DPE
A
B
C
D
E
F
G
GES
A
B
C
D
E
F
G

Prêt immobilier

Vous souhaitez connaître votre capacité d’emprunt et trouver le meilleur crédit immobilier ?
Réaliser une simulation gratuite

Commerce à BRON
Commerce à BRON
Ce site est protégé par reCAPTCHA la Politique de confidentialité et les Conditions d’utilisation de Google s’appliquent.
Obtenir un prêt immobilier au meilleur taux ?

En poursuivant votre navigation sans modifier vos paramètres, vous acceptez l'utilisation de cookies susceptibles de réaliser des statistiques de visite. Cliquez ici pour plus d'informations