1. Accueil
  2. > Commerces à vendre
  3. > Rhône (69)

Commerces à vendre Rhône (69)

Précisez votre recherche par ville


LyonVilleurbanneLyon-3eLyon-8eLyon-7eVenissieuxLyon-6eLyon-9eLyon-5eCaluire-Et-Cuire

Autres villes du département Rhône

A Amberieux, Amplepuis, Ampuis, Anse, Arnas
E Ecully, Eveux
J Jonage, Joux, Julienas, Jullie
Commerce à VILLEURBANNE
A VENDRE Locaux commerciaux avec VITRINE - 47m2 cours Tolstoi à Villeurbanne
VILLEURBANNE
A VENDRE 2 locaux commerciaux cote à cote pour une surface totale de 47m2, avec Vitrine Adresse : 160 Cours Tolstoi, idéalement situés à 200m du futur tram Grand Clement 2 entrées séparées ...
200 000 €
WeLoge
Commerce à LYON-1E
Local commercial de 62,70 m² à 175 000
LYON-1E
Lyon Métropole Habitat vous propose à la vente un local tertiaire de 62,70 m² « Carrez », idéalement situé au 1er étage d'un immeuble en plein coeur du 1?? arrondissement de Lyon. A deux pas ...
175 000 €
Commerce à LE BOIS-D'OINGT
Commerce à Le Bois-D'oingt
LE BOIS-D'OINGT
Fiche Id-UBW150644 : Le bois d'oingt, secteur Centre bourg, Activit? commerciale coiffure - - Equipements annexes : cour - cave - chauffage : Aucun - Plus d'informations disponibles ...
55 000 €
Réseau Immo-Diffusion.fr
Commerce à LYON-6E
Location bureaux – 95 m² – Lyon 6ᵉ – Cours Vitton
LYON-6E
Location bureaux – 95 m² – Lyon 6ᵉ – Cours Vitton À louer, bureaux de 95 m² idéalement situés sur le Cours Vitton, dans le 6ᵉ arrondissement de Lyon, au sein d'un bel immeuble haussmannien s ...
1 900 000 €
Commerce à SAINTE-FOY-LES-LYON
Commerce 210 m² à Sainte-Foy-Les-Lyon
SAINTE-FOY-LES-LYON
parking
ALERTE BAISSE DE PRIX : Situé à l'ouest de Sainte Foy Les Lyon, ces très beaux bureaux bénéficient d'un cadre de qualité avec une très belle vue. Bénéficiant d'une triple exposition ...
434 000 €
RÉSEAU BROKERS®
Commerce à LYON-4E
Local commercial 60m2 à Lyon 4
LYON-4E
Découvrez ce local commercial de 60 m2 idéalement situé dans le 4ème arrondissement de Lyon. Au rez-de-jardin d’une copropriété sécurisée et rénovée en 2018, ce bien bénéficie d'un entretien ...
279 000 €
HEMERYS IMMOBILIER
Commerce à SAINT-BONNET-DE-MURE
Proximité du centre
SAINT-BONNET-DE-MURE
accès handicapé
A saisir! grand local d'une surface de 128m2 donnant directement sur la rue générale de gaulle, disposant d'une très belle visibilité. Exposé plein sud, de forme rectangulaire ce local e ...
307 200 €
C Loué C Vendu - Agence immobilière
Commerce à SAINT-FONS
Local d'activité climatisé
SAINT-FONS
Atypique dans bâtiment tertiaire 1950, en fond d'impasse stationnement libre, local au 2ème étage sur 2 avec ascenseur et monte-charges, très clair, grande fenêtre plein sud et sheds au plafo ...
59 000 €
Commerce à LYON-7E
Commerce 230 m² à Lyon-7e
LYON-7E
PME indépendante générant des revenus récurrents, reposant sur une clientèle fidélisée à forte fréquence d’achat. Modèle simple et éprouvé : flux réguliers de commandes, combinés à un canal e-comm ...
280 000 €
Immo PRO
Commerce à LYON-3E
LYON 3 - 21 Rue des Rancy - Superbe local commercial loué / Vente investisseurs
LYON-3E
LYON 3 - '21 Rue des Rancy' - Superbe Local commercial d'angle en pied d'immeuble avec larges vitrines sur Rue d'une surface totale de 75,45m2 en excellent état. Ce que no ...
199 000 €
Bureau Sully
Commerce à VAUGNERAY
Commerce 200 m² à Vaugneray
VAUGNERAY
BAR TABAC OUEST LYONNAIS Superbe fonds de commerce tenu par le même couple depuis 9 années. Le secteur est commerçant et dispose de nombreux stationnements aux allentours. Il existe une partie ha ...
378 000 €
Immo PRO
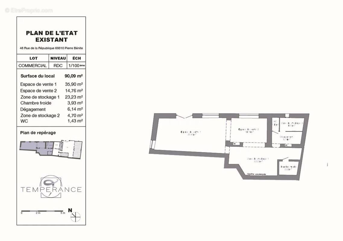
Commerce à PIERRE-BENITE
Fonds de commerce Pierre Benite
PIERRE-BENITE
ascenseur
Murs commerciaux de 96m² situé au rdc d'une copropriété de 397 lots d'habitation, une résidence familiale et à 10 minutes à pieds du boulevard de l'Europe ( 2 allée du château PIER ...
135 000 €
Régie Simonneau Lyon 6
Commerce à LYON-8E
Local commercial Lyon 105.38 m2
LYON-8E
Situé au 5 rue Professeur Nicolas, 69008 Lyon, ce local commercial de 105,38 m² Carrez (119,68 m² au sol), ancienne boulangerie réaménagée, offre de nombreuses possibilités d'exploitation. Il ...
260 000 €
Gedira
Commerce à VILLEURBANNE
Commerce 170 m² à Villeurbanne
VILLEURBANNE
Ce superbe salon décoré avec soin bénéficie de l'emplacement idéal au Carré de Soie. Parking gratuit, flux importants toute l'année. Le salon a développé une belle clientèle plutôt haut ...
324 000 €
Immo PRO
Commerce à LYON-3E
Commerce 200 m² à Lyon-3e
LYON-3E
Près de la Mairie du 3e et du Palais de Justice, ce restaurant de 60 couverts est entièrement rénové. La cuisine, conçue pour l’efficacité, permet de travailler dans les meilleures conditions. Ré ...
448 000 €
Immo PRO
Commerce à LYON-2E
Commerce 75 m² à Lyon-2e
LYON-2E
A proximité de l’église Saint-Nizier, découvrez ce local de 75 m² en excellent état, situé sur un axe commerçant très fréquenté. Environnement dynamique, porté par la présence d'enseignes gén ...
68 000 €
Immo PRO
Commerce à LYON-2E
Commerce 100 m² à Lyon-2e
LYON-2E
Restaurant clé en main en Presqu’île. 50 couverts terrasse, salle lumineuse au charme pierre apparente, avec mezzanine lounge pour créer une vraie ambiance. Cuisine impeccable, aucun travaux. Lo ...
190 000 €
Immo PRO
Commerce à CONDRIEU
Fonds de commerce - Boulangerie / Patisserie / Chocolaterie
CONDRIEU
Sur la commune de Chavanay, en plein coeur du village, l’agence Immorêve vous propose d’acquérir ce fonds de commerce dédié à la Boulangerie, Pâtisserie et Chocolaterie, en activité depuis 2008. I ...
34 900 €
IMMORÊVE
Commerce à SAINT-PRIEST
Commerce 300 m² à Saint-Priest
SAINT-PRIEST
Affaire structurée et performante, réalisant 1,25 MEuros de CA sur 10 services par semaine, avec une offre de brasserie maîtrisée et un ticket moyen d’environ 25 Euros. Cuisine et salle en excell ...
1 900 000 €
Immo PRO
Commerce à LYON-4E
Commerce 75 m² à Lyon-4e
LYON-4E
Au cœur de la vie de quartier, ce salon de coiffure exploité depuis 20 ans offre un business solide, prêt à performer. CA 230 KEuros pour EBE de 100 KEuros : rentabilité prouvée Clientèle fidèle e ...
137 000 €
Immo PRO
Commerce à CHAPONOST
Commerce 450 m² à Chaponost
CHAPONOST
Ouest Lyonnais – Restaurant clé en main : CA 1.1 MEuros, EBE 250 KEuros. Salle principale moderne et lumineuse. 150 couverts sous les arbres en terrasse. Bar extérieur pour les moments apéro-tapas ...
648 000 €
Immo PRO
Commerce à LYON-3E
Commerce 100 m² à Lyon-3e
LYON-3E
Dans le quartier de la Part Dieu, belle affaire du midi de 50 couverts intérieur. L'affaire est située en angle de rue, et dispose d'une terrasse de 60 places. De plus le loyer est très ...
324 000 €
Immo PRO
Commerce à LYON-2E
Commerce 100 m² à Lyon-2e
LYON-2E
Restaurant clé en main en Presqu’île. 50 couverts mezzanine lounge terrasse Cuisine équipée, aucun travaux à prévoir Murs commerciaux 100 m² appartement T3 (45 m² Carrez) inclus dans la cess ...
456 000 €
Immo PRO
Commerce à LYON-9E
Commerce 150 m² à Lyon-9e
LYON-9E
bar restaurant tres belle affaire, avec pierres apparentes ! beaucoup de cachet restaurant du midi lundi au vendredi, et vendredi soir. licence 4 sous exploitee forte demande de privatisation le ...
249 000 €
Immo PRO
Commerce à LYON-6E
Commerce 140 m² à Lyon-6e
LYON-6E
Lyon 6 : Boulangerie-Pâtisserie rentable A côté du métro Masséna, belle affaire avec clientèle fidèle. CA 330 KEuros et EBE 100 KEuros. Magasin refait à neuf, grand labo, équipement complet et e ...
198 000 €
Immo PRO
Commerce à CHAPONOST
Commerce 450 m² à Chaponost
CHAPONOST
Ouest Lyonnais – Restaurant Murs et Fonds clé en main : CA 1.1 MEuros, EBE 250 KEuros. Salle principale moderne et lumineuse. 150 couverts sous les arbres en terrasse. Bar extérieur pour les mome ...
1 400 000 €
Immo PRO
Commerce à LYON-7E
Commerce 50 m² à Lyon-7e
LYON-7E
Petite affaire de bar restaurant dans le 7 ème qui tourne fort. Située dans un quartier qui bouge, proche des facs, l'affaire a une terrasse intérieure privative de 24 places ce qui est rare ...
264 000 €
Immo PRO
Commerce à VILLEFRANCHE-SUR-SAONE
Local commercial - Libre
VILLEFRANCHE-SUR-SAONE
Villefranche Est, local commercial d’environ 96.67m2 avec vitrine sur rue composé de 4 pièces, d’un coin cuisine, un toilette, une partie courette à l’arrière, une cave en sous-sol d’environ 12.30 ...
99 000 €
Dell's Immo
Commerce à SAINT-PRIEST
Commerce 300 m² à Saint-Priest
SAINT-PRIEST
Affaire structurée et performante, réalisant 1.25 MEuros de CA sur un rythme confortable de 10 services par semaine, avec une offre de brasserie maîtrisée et un ticket moyen d’environ 25 Euros. Cu ...
950 000 €
Immo PRO
Commerce à LIMONEST
Commerce 225 m² à Limonest
LIMONEST
parkingascenseur
À Limonest, dans la zone du Techlid, au 13 rue des Aulnes, découvrez ce superbe local à usage de bureau de 225 m², en excellent état. Il se compose de 8 bureaux cloisonnés ainsi qu'un open-sp ...
485 000 €
Commerce à OULLINS
Commerce 120 m² à Oullins
OULLINS
Situé sur un axe passant, cet établissement bénéficie d’une excellente visibilité et d’une terrasse à l’année de 25 places salle 45 cvts, cuisine complète, four à pizza. Bar tout équipé et confi ...
219 000 €
Immo PRO
Commerce à GLEIZE
Commerce 170 m² à Gleize
GLEIZE
Affaire de restauration traditionnelle implantée depuis plusieurs décennies au cœur d’une ville dynamique du nord lyonnais, bénéficiant d’une clientèle établie. L’affaire développe un CA régulier ...
518 000 €
Immo PRO
Commerce à VILLEURBANNE
Commerce 75 m² à Villeurbanne
VILLEURBANNE
Restaurant du midi en zone tertiaire dense, Tonkin limite Lyon-Villeurbanne. Salle récente, 75 m², 30 couverts terrasse 20 places, cuisine équipée avec extraction petite restauration. Idéal po ...
99 000 €
Immo PRO
Commerce à LYON-7E
Commerce 120 m² à Lyon-7e
LYON-7E
Affaire propre et fonctionnelle exploitée sur seulement 8 services par semaine. 55 places en salle 45 en terrasse privative au calme. Cuisine spacieuse, parfaitement entretenue et aux normes, ba ...
198 000 €
Immo PRO
Commerce à LYON-6E
Commerce 70 m² à Lyon-6e
LYON-6E
Local en angle ultra lumineux avec 6 vitrines sur plus de 12 m de linéaire. Situé au coeur du 6ème, ce local de 70 m² est refait à neuf et disponible de suite. A l'exception de la restauratio ...
28 640 €
Immo PRO
Commerce à VAULX-EN-VELIN
Commerce 180 m² à Vaulx-En-Velin
VAULX-EN-VELIN
Belle brasserie en angle dotée d'une grande terrasse à l'année. Etablissement très lumineux de grande surface intérieure. L'emplacement est de premier ordre avec une excellente visi ...
345 000 €
Immo PRO
Commerce à BRIGNAIS
Local d'Activités & Bureaux - Brignais (69530
BRIGNAIS
Votre agence EVE Immobilier vous propose de découvrir ce local d'activité de 270m² à vendre ou à louer. Emplacement stratégique au sein d'un parc d'activités, offrant une excelle ...
428 000 €
EVE IMMOBILIER
Commerce à LYON-6E
Commerce 57 m² à Lyon-6e
LYON-6E
accès handicapé
LYON 3 – VOLTAIRE / SAINT-AMOUR – LOCAL PROFESSIONNEL MODULABLE – EMPLACEMENT STRATÉGIQUE Idéalement situé dans le secteur dynamique Voltaire / Saint-Amour, à proximité immédiate de la Bourse du ...
285 000 €
Novea Immobilier
Commerce à LYON-7E
Commerce 60 m² à Lyon-7e
LYON-7E
Salon de thé ou restaurant sans extraction situé dans le 7ème près du quai Claude Bernard dans un quartier vivant. Des travaux sont à prévoir mais l'espace est facile à travailler. Possibilit ...
88 000 €
Immo PRO
Commerce à LYON-3E
Commerce 90 m² à Lyon-3e
LYON-3E
Belle affaire toute rénovée, dans un quartier attractif du 3ème. Idéale pour développer une offre du midi simple et efficace et conserver le soir une ambiance bar et cuisine à partager. Cuisine éq ...
137 500 €
Immo PRO
Commerce à CRAPONNE
Commerce 270 m² à Craponne
CRAPONNE
parkingaccès handicapé
Chez Pietrapolis Immobilier, nous vous proposons un local commercial de 270m2 en rez-de-chaussée, sans travaux, avec 3 places de stationnements sur Craponne. Le Bail commercial se termine fin Ju ...
599 000 €
Pietrapolis Immobilier
Commerce à CONDRIEU
Commerce 140 m² à Condrieu
CONDRIEU
Belle auberge avec une charmante salle de couverts. La terrasse privée est abritée et permet de recevoir la clientèle dans un cadre agréable. Le matériel de cuisine est récent et l'affaire ne ...
142 000 €
Immo PRO
Commerce à LYON-1E
Commerce 300 m² à Lyon-1e
LYON-1E
Emplacement N°1 entre Cordeliers et Terreaux pour ce restaurant de 300 m². Un flux piéton constant grâce à la présence de nombreuses enseignes internationales à proximité immédiate. L’établissem ...
450 000 €
Immo PRO
Commerce à LYON-3E
Commerce 110 m² à Lyon-3e
LYON-3E
Situé dans un des secteurs les plus vivants du 3ème arr. ce grand local vide de plain-pied est totalement à rénover. Cela vous permettra d'installer le projet que vous souhaitez. Le bailleur ...
9 900 €
Immo PRO
Commerce à LYON-7E
Commerce 129 m² à Lyon-7e
LYON-7E
Magnifique salon de soins esthétiques et bronzage situé sur un axe majeur de Lyon. Le salon est installé au pied d'une résidence neuve et bénéficie d'une excellente visibilité. Pour chaq ...
389 000 €
Immo PRO
Commerce à LYON-7E
Commerce 90 m² à Lyon-7e
LYON-7E
Restaurant avec une grande cuisine, de nombreuses réserves et une grande cave. Il est situé près des quais et bénéficie de la clientèle locale et touristique grâce un bon emplacement et une excell ...
242 000 €
Immo PRO
Commerce à LYON-2E
Commerce 48 m² à Lyon-2e
LYON-2E
Votre vitrine Place Bellecour - Loyer 1100Euros Droit au baill de 45 m² idéalement situé Place Bellecour, sur un flux piéton constant. Avec ses 6 m de vitrine, votre enseigne bénéficie d’une très ...
99 000 €
Immo PRO
Commerce à LYON-1E
Commerce 60 m² à Lyon-1e
LYON-1E
Local de 60 m² situé quai de la Pêcherie, dans un secteur prisé à fort passage piéton. Un loyer incroyable pour ce quartier ultra commerçant. Ce local avec de belles voutes en pierre offre égaleme ...
99 000 €
Immo PRO
Commerce à LYON-6E
Commerce 60 m² à Lyon-6e
LYON-6E
Superbe DAB, petit prix, idéalement situé. Situé au coeur d'un quartier à fort pouvoir d'achat et sur axe très passant. Le local est en angle et offre une très visibilité. Il est possibl ...
88 000 €
Immo PRO
Commerce à LYON-6E
Commerce 60 m² à Lyon-6e
LYON-6E
Suberpe emplacement, en angle. Idéal pour un salon de thé. Sur un secteur a fort passage et gros potentiel d'achat. Le local est très lumineux, en très bon état. Un espace unique facile à ame ...
88 000 €
Immo PRO
Commerce à LYON-7E
Jean Macé - Local commercial à la vente de 233m²
LYON-7E
ascenseur
Lyon 7 -Jean Macé-Local commercial / Bureaux d'une superficie de 234m² Carrez- Local sur deux niveaux - Nous avons au rez-de-chaussée un espace de 125 m² et 108 m² à l'étage. Deux caves ...
690 000 €
Rez-de-chaussée.com
Commerce à FONTAINES-SUR-SAONE
Commerce 110 m² à Fontaines-Sur-Saone
FONTAINES-SUR-SAONE
Bar pur, emplacement premium. Excellente réputation sur le secteur et belle clientelle. Au centre d'une commune très active avec un cadre de vie L'établissement offre 30 places interi ...
137 000 €
Immo PRO
Commerce à LYON-9E
Commerce 110 m² à Lyon-9e
LYON-9E
Très belle affaire de restauration, salon de thé, coffe shop. Deux salles distinctes. Une pour l'emporter, l'autre pour le sur place. Deux terrasses dont une sur rue très commercante. Au ...
150 000 €
Immo PRO
Commerce à LYON-9E
Commerce 120000 m² à Lyon-9e
LYON-9E
Superbe établissement clé en main. Décoration soignée, cuisine ouverte sur la salle. Uniquement 5 services du midi,et deux le soir. Fermé le week-end. L'établissement ne demande aucuns travau ...
140 000 €
Immo PRO
Commerce à LYON-2E
Commerce 257 m² à Lyon-2e
LYON-2E
Belle opportunité — emplacement n°1 au cœur de Lyon, idéal pour investisseur ou chef ambitieux. Points forts : - Surface totale : 260 m² (surface commerciale ˜ 180 m²). - Capacité : 120 couverts ...
918 000 €
Immo PRO
Commerce à LYON-9E
Commerce 20 m² à Lyon-9e
LYON-9E
A SAISIR ! Coup de fusil ! Pizzeria à emporter dans le coeur du 9ème à proximité de bureaux et hotels avec fort potentiel de développement ! Facade neuve , intérieur propre avec matériel ok TOU ...
29 900 €
Immo PRO
Commerce à LYON-1E
Lyon Croix Rousse
LYON-1E
parking
*** Sous Offre Acceptée *** Atelier a usage commercial avec 2 garages au coeur de la croix rousse.
250 000 €
Immo Saint-Cyr
Commerce à LYON-1E
Alimentation
LYON-1E
URGENT! LYON 1er – TERREAUX – FONDS DE COMMERCE – TOUS COMMERCES – 45 m² – EMPLACEMENT STRATÉGIQUE – GRANDE CAVE – EXTRACTION Efficity, l'agence qui estime votre bien en ligne, vous propose c ...
59 500 €
Réseau Efficity
Commerce 160 m² à Cublize
CUBLIZE
Bar Resto Pizzeria Affaire midi et soir Belle capacité intérieure et extérieure Terrains de pétanque Matériel cuisine et bar NEUFS ! Faible loyer ! Possibilité d'acheter les murs à bon pri ...
132 000 €
Immo PRO
Photo 1 - Commerce à LYON-9E
Commerce 342 m² à Lyon-9e
LYON-9E
Iad France - Fabien Torrecillas vous propose : MURS / LOCAUX COMMERCIAUX - 6 STATIONNEMENTS PRIVATIFS INCLUS - LYON 9Secteur dynamique et vivant à Vaise à proximité de plusieurs lignes de bus et d ...
625 000 €
iad France

En poursuivant votre navigation sans modifier vos paramètres, vous acceptez l'utilisation de cookies susceptibles de réaliser des statistiques de visite. Cliquez ici pour plus d'informations