Bénéficiez des services de nos partenaires locaux soigneusement sélectionnés
pour vous accompagner dans votre parcours d'achat immobilier

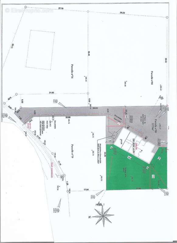
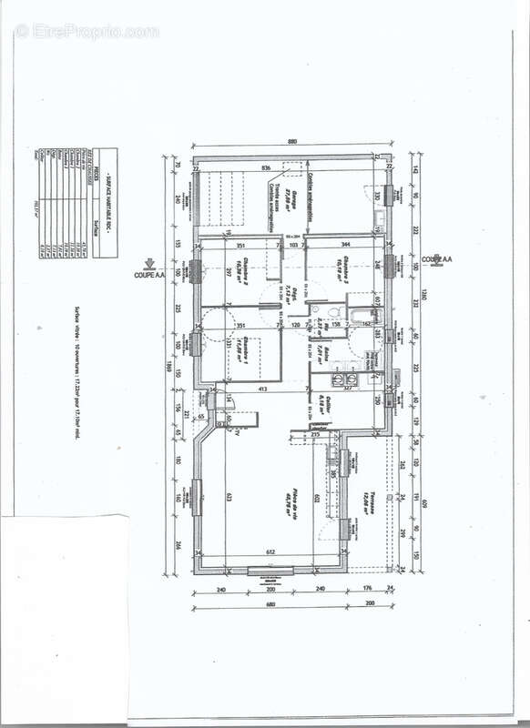
Belle villa plain pied de 102.57m2 habitables

— Louhans 71500 —
249 000 €
102 m² / 1 279 m²
5 pièces
parkingbalcon/terrassejardin

Nos partenaires locaux
EXCLUSIVE NOUVEAU SUD DE LOUHAN 5MN. Belle villa de plain pied neuve de 102.57M2 habitables,composée d'une grande pièce de vie, cuisine ouverte sur salon séjour,3 belles chambres,salle de bain et douche,meuble 2 vasques,wc séparé avec lave main,buanderie,garage 27M2 avec porte éléctrique.LES PLUS ...Volet roulant Electrique - Plancher chauffant pompe à chaleur. air eau- Maison conforme aux dernières réglementations thermiques RE2020. - Portes interrieur couleur bois clair - Peinture blanche murs et plafonds - Parquet dans les chambres - Faïence salle de bain et Wc. - tout à l égout .le tout sur un terrain de 1173M2. Proche du village écoles ,commerces,avec toutes les garanties .Frais notaire réduit,quartier très calme et résidentielle AU CALME VUE CAMPAGNE PROCHE DU VILLAGE PRIX 249000.00€
Contactez votre agent local :Philippe PROST - [Coordonnées masquées] - Agent Commercial - GROUPEMENT IMMOBILIER - Plus d'informations sur www.groupementimmo.fr - (réf.34829 http://www.groupementimmo) - EI Philippe PROST RSAC No 348 545 799 Bourg en Bresse - Les honoraires sont à la charge du vendeur

- Honoraires charge Vendeur
- DPE : Vierge
Montant estimé des dépenses annuelles d'énergie pour un usage standard :0 et 0 par an. Prix moyens des énergies indexés sur l'année (abonnements compris)
Cette annonce vous est proposée par Prost Philippe - EI - NoRSAC: 348 545 799, Enregistré à Greffe du tribunal de commerce de Bourg-en-Bresse Les informations sur les risques auxquels ce bien est exposé sont disponibles sur le site Géorisques : www.georisques.gouv.fr - Annonce rédigée et publiée par un Agent Mandataire -
Voir plus

Référence: 34829
Honoraires à la charge du vendeur.
Barème des honoraires

Prêt immobilier

Vous souhaitez connaître votre capacité d’emprunt et trouver le meilleur crédit immobilier ?
Réaliser une simulation gratuite

Maison à LOUHANS
Maison à LOUHANS
Maison à LOUHANS
Maison à LOUHANS
Maison à LOUHANS
Maison à LOUHANS
Maison à LOUHANS
Maison à LOUHANS
Maison à LOUHANS
Maison à LOUHANS
Maison à LOUHANS
Maison à LOUHANS
Maison à LOUHANS
Maison à LOUHANS
Maison à LOUHANS
Maison à LOUHANS
Maison à LOUHANS
Ce site est protégé par reCAPTCHA la Politique de confidentialité et les Conditions d’utilisation de Google s’appliquent.
Obtenir un prêt immobilier au meilleur taux ?

En poursuivant votre navigation sans modifier vos paramètres, vous acceptez l'utilisation de cookies susceptibles de réaliser des statistiques de visite. Cliquez ici pour plus d'informations