Bénéficiez des services de nos partenaires locaux soigneusement sélectionnés
pour vous accompagner dans votre parcours d'achat immobilier

Appartement 3 chambres plein sud

— Plaisir 78370 —
189 800 €
84 m²
4 pièces
ascenseur

Nos partenaires locaux
ALLIANCE IMMO 78 VOUS PRÉSENTE UN APPARTEMENT 4 PIÉCES ENSOLEILLÉ PLEIN SUD - AVEC LOGGIA.

JOURNÉE PORTES OUVERTE LE SAMEDI 6 DECEMBRE 2025 de 14h à 17h uniquement sur rendez-vous. RÉSERVER VOTRE CRÉNEAU DE VISITE AU [Coordonnées masquées]

Situé à Plaisir (78370), cet appartement offre un cadre de vie privilégié dans une copropriété calme à proximité de la gare de Plaisir Grignon, à seulement 25 minutes de la Gare de Paris Montparnasse. Ses atouts incluent la facilité d'accès aux commerces, écoles, collèges et lycées.

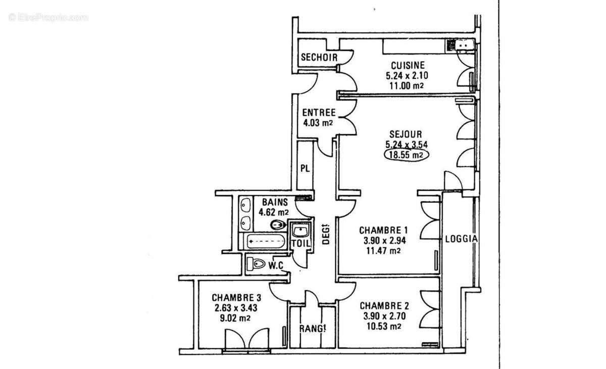
Situé dans une résidence avec ascenseur cet appartement de plus de 83m2 vous séduira grâce à ses nombreux atouts : Balcon sans vis à vis et vue sur la verdure, double vitrage avec volets roulants électriques, Cave .
Il se compose comme suit : Une entrée avec placard dessert une cuisine de plus de 10m2 ensoleillé et entièrement équipée semi ouverte sur un salon/salle à manger, trois belles chambres équipé de placards intégrés (poss salon double séjour) , une salle de bains carrelée avec baignoire, une salle de douche, un WC séparé et un dressing.
COUP DE COEUR ASSURE.
(5 % d'honoraires TTC à la charge de l'acquéreur.) Net vendeur : 189000€ Copropriété de 948 lots (Pas de procédure en cours).
Montant estimé des dépenses annuelles d'énergie pour un usage standard : entre 1070 € et 1500 € %agence
Voir plus

Référence: 85017769
Barème des honoraires
DPE
A
B
C
D
E
F
G
GES
A
B
C
D
E
F
G

Prêt immobilier

Vous souhaitez connaître votre capacité d’emprunt et trouver le meilleur crédit immobilier ?
Réaliser une simulation gratuite

Appartement à PLAISIR
Appartement à PLAISIR
Appartement à PLAISIR
Appartement à PLAISIR
Appartement à PLAISIR
Appartement à PLAISIR
Appartement à PLAISIR
Appartement à PLAISIR
Appartement à PLAISIR
Appartement à PLAISIR
Appartement à PLAISIR
Appartement à PLAISIR
Appartement à PLAISIR
Ce site est protégé par reCAPTCHA la Politique de confidentialité et les Conditions d’utilisation de Google s’appliquent.
Obtenir un prêt immobilier au meilleur taux ?

En poursuivant votre navigation sans modifier vos paramètres, vous acceptez l'utilisation de cookies susceptibles de réaliser des statistiques de visite. Cliquez ici pour plus d'informations